/hr/prod/real-estate/2064/LOLXDDEXRAA3V2HZA2QRDNHUMAPK/dvougeneracni-kamenny-dum-na-prodej-v-marcani-v-chorvatsku.webp)
Dvougenerační kamenný dům na prodej v Marčani v Chorvatsku
Přehled připravenosti nemovitosti
V srdci Istrie, v klidné části obce Marčana, se nachází tato autentická dvojdomek z kamene k prodeji. Leží na pozemku o rozloze 550 m², pouhých 15 km od Puly, což zajišťuje skvělou dostupnost a klidné prostředí.
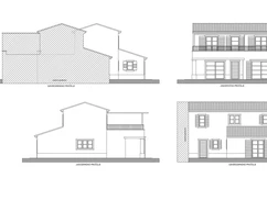
Tradiční istrijská architektura
Při stavbě domu byl kladen důraz na zachování původního istrijského stylu. Fasáda je obložena kamenem, všechny okenice i okna jsou ze dřeva, což ještě více podtrhuje autentičnost a kouzlo této nemovitosti v Istrii.
Velkorysé a praktické uspořádání
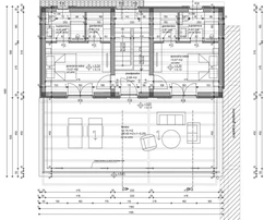
Dům má dvě podlaží. V přízemí se nachází prostorný, světlý obývací pokoj, moderně vybavená kuchyně, jedna ložnice s vlastní koupelnou a samostatná toaleta pro hosty. Z obývacího pokoje je přímý vstup k bazénu a na sluneční terasu, ideální pro relaxaci v soukromí a klidu.
V patře jsou dvě pohodlné ložnice, každá s vlastní koupelnou a terasou. V pokojích bude položen laminát, koupelny jsou vybaveny keramickou dlažbou a elektrickým podlahovým vytápěním, což zajišťuje komfort po celý rok.
Přestože se jedná o dvojdomek, jeho dispozice zaručuje naprosté soukromí a klidná lokalita z něj činí ideální volbu pro rodinu nebo rekreační pobyt v Istrii. Dokončení stavby je plánováno na konec roku, což umožňuje budoucímu majiteli včas naplánovat nastěhování.
Tento dům k prodeji v Marčani představuje skvělou příležitost k investici nebo bydlení v autentickém istrijském prostředí.
Tento půvabný kamenný dům v Marčani je skutečným příkladem tradiční istrijské nemovitosti, která spojuje historii s moderním komfortem. Pokud vás zajímají další nemovitosti v této krásné části Chorvatska, prozkoumejte pestrou nabídku na stránce nemovitosti v Istrii, kde najdete mnoho možností pro investici nebo bydlení v jedinečném istrijském prostředí.
Všechny dostupné nemovitosti a prémiové nabídky v regionu: Marčana
/central/prod/contact/37/01KFFPCGH78HYVDM5K33B56TDY/famalo.png)
V prémiových nemovitostech není hlavní výzvou najít nabídky. Důležité je rozpoznat ty, které si skutečně zaslouží vaši pozornost.
Právě v tom spočívá přínos Famalo. Jde o moderní realitní platformu, která pomáhá dělat první rozhodnutí při výběru nemovitosti jasněji, rychleji a s lepším zaměřením na to podstatné.
Pro kupující to znamená výběr, který více odpovídá jejich skutečným preferencím. Méně zbytečného šumu. Lepší výchozí bod pro hledání i rozhodování. V některých případech mohou získat také přístup k off-market nabídkám, které nejsou běžně dostupné na otevřeném trhu.
Pro partnery Famalo přináší lepší viditelnost před publikem, které aktivně hledá, má jasný zájem a je finančně připravené jednat. Výsledkem jsou kvalitnější kontakty a přesnější propojení mezi nabídkou a skutečným zájmem.
Postaveno na reálném zájmu. Kvalitnější výběr. Lepší začátek.

Prodávejte globálně s Famalo
Oslovte seriózní mezinárodní kupující. Pracujte s předkvalifikovanými klienty.
Na základě dat a precizního marketingu
S podporou Famalo Buyers Club
Potvrzuji, že jsem si přečetl/a a souhlasím s podmínkami Obchodní podmínky pro kupující a Zásady ochrany osobních údajů.
/hr/prod/real-estate/2064/6YFWPZAUZAOS737IQINDNFIVBY6M/dvougeneracni-kamenny-dum-na-prodej-v-marcani-v-chorvatsku-1.webp)
/hr/prod/real-estate/2064/H2A5ATMXATTJUU6O6YTTAXCTGYCT/dvougeneracni-kamenny-dum-na-prodej-v-marcani-v-chorvatsku-2.webp)
/hr/prod/real-estate/2064/WSZY8TCZQAH61B7WB6STBLYFAZ8Z/dvougeneracni-kamenny-dum-na-prodej-v-marcani-v-chorvatsku-3.webp)
/hr/prod/real-estate/2064/G7LO6CPYBTBTUNLAW6WJ5KZWVSZE/dvougeneracni-kamenny-dum-na-prodej-v-marcani-v-chorvatsku-4.webp)