/hr/prod/real-estate/7526/cover/moderni-dum-ve-vystavbe-s-bazenem-istrie-sveti-lovrec.webp)
Moderní dům ve výstavbě s bazénem, Istrie, Sveti Lovreč
Přehled připravenosti nemovitosti
Sveti Lovreč se nachází uprostřed bujných levandulových polí v západní části Istrijského poloostrova, v bezprostředním zázemí měst Vrsar, Poreč a Rovinj, a patří k nejlépe dochovaným středověkým opevněným městům v Istrii. Poloha malého města na mírném kopci, který dominuje oblasti, kde je roztroušeno až 22 osad, vesnic a samot, svědčí o jeho významné roli v průběhu historie. Podél mírně členitého západního pobřeží Istrie se nachází několik hlubokých zálivů, z nichž Limský záliv je částečně součástí obce Sveti Lovreč. Limský záliv je přírodní fenomén velké vědecké a estetické hodnoty; byl vyhlášen zvláštní rezervací v moři.
Na prodej je moderní vila ve výstavbě s bazénem ve Sveti Lovreči, poblíž oblíbeného města Poreč.
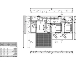
Vila byla postavena jako jedna obytná jednotka s čistou plochou 175 m², rozložená do dvou podlaží, přízemí a prvního patra. V přízemí se nachází otevřený obytný prostor, který zahrnuje obývací pokoj, jídelnu a kuchyň s přístupem na terasu, ložnice s vlastní koupelnou, toaleta pro hosty, prádelna a sklad.
Vnitřní schodiště vede do prvního patra, kde jsou tři ložnice, každá s vlastní koupelnou a terasou. Vila je vytápěna/chlazena podlahovým vytápěním přes tepelné čerpadlo, klimatizací a krbem na dřevo v obývacím pokoji.
Pozemek s bazénem má rozlohu 619 m². Krásně upravený a oplocený dvůr má krytou letní kuchyni vedle domu, zatímco centrální místo zaujímá bazén o rozměrech 9,5 m x 3,5 m s prostorem na opalování.
Poloha, dispozice a komfort činí tuto nemovitost ideální pro klidný rodinný život i jako investici za účelem turistického pronájmu.
Všechny dostupné nemovitosti a prémiové nabídky v regionu: Sveti Lovreč
/central/prod/contact/37/01KFFPCGH78HYVDM5K33B56TDY/famalo.png)
V prémiových nemovitostech není hlavní výzvou najít nabídky. Důležité je rozpoznat ty, které si skutečně zaslouží vaši pozornost.
Právě v tom spočívá přínos Famalo. Jde o moderní realitní platformu, která pomáhá dělat první rozhodnutí při výběru nemovitosti jasněji, rychleji a s lepším zaměřením na to podstatné.
Pro kupující to znamená výběr, který více odpovídá jejich skutečným preferencím. Méně zbytečného šumu. Lepší výchozí bod pro hledání i rozhodování. V některých případech mohou získat také přístup k off-market nabídkám, které nejsou běžně dostupné na otevřeném trhu.
Pro partnery Famalo přináší lepší viditelnost před publikem, které aktivně hledá, má jasný zájem a je finančně připravené jednat. Výsledkem jsou kvalitnější kontakty a přesnější propojení mezi nabídkou a skutečným zájmem.
Postaveno na reálném zájmu. Kvalitnější výběr. Lepší začátek.

Prodávejte globálně s Famalo
Oslovte seriózní mezinárodní kupující. Pracujte s předkvalifikovanými klienty.
Na základě dat a precizního marketingu
S podporou Famalo Buyers Club
Potvrzuji, že jsem si přečetl/a a souhlasím s podmínkami Obchodní podmínky pro kupující a Zásady ochrany osobních údajů.
/hr/prod/real-estate/7526/img_0/moderni-dum-ve-vystavbe-s-bazenem-istrie-sveti-lovrec-1.webp)
/hr/prod/real-estate/7526/img_1/moderni-dum-ve-vystavbe-s-bazenem-istrie-sveti-lovrec-2.webp)
/hr/prod/real-estate/7526/img_2/moderni-dum-ve-vystavbe-s-bazenem-istrie-sveti-lovrec-3.webp)
/hr/prod/real-estate/7526/img_3/moderni-dum-ve-vystavbe-s-bazenem-istrie-sveti-lovrec-4.webp)