/hr/prod/real-estate/8866/cover/modernes-freistehendes-haus-mit-funf-wohnungen-in-erster-reihe-zum-meer.webp)
MODERNES FREISTEHENDES HAUS MIT FÜNF WOHNUNGEN, IN ERSTER REIHE ZUM MEER!
Objekt-Bereitschaft im Überblick
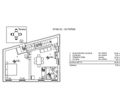
Insel Krk, Baška, modernes Einfamilienhaus mit einer Wohnfläche von 247 m2 zum Verkauf, mit Meerblick und angelegtem Garten von 190 m2, auf einem Grundstück von 501 m2. Das Haus besteht aus einem Keller mit Einzimmerwohnung und Terrasse, Erdgeschoss mit zwei Einzimmerwohnungen mit Terrassen, Obergeschoss mit Zweizimmerwohnung und Terrasse von 10,60 m2 sowie separatem Studioapartment mit überdachter Terrasse von 13,29 m2 und grüner Terrasse von 36 m2. Hochwertige Bauweise und Ausstattung, PVC-Fenster, Klimaanlage, Sicherheitstüren, ausgestattet und möbliert, drei Wohneinheiten, sechs Parkplätze. Exklusive Lage, erste Reihe zum Meer.
/central/prod/contact/37/01KFFPCGH78HYVDM5K33B56TDY/famalo.png)
Im Premium-Immobiliensegment besteht die Herausforderung nicht darin, Objekte zu finden. Entscheidend ist zu erkennen, welche wirklich Ihre Aufmerksamkeit verdienen.
Genau hier setzt Famalo an. Es ist eine moderne Immobilienplattform, die dabei hilft, erste Entscheidungen klarer, schneller und gezielter zu treffen.
Für Käufer bedeutet das eine Auswahl, die stärker auf tatsächlichen Präferenzen basiert. Weniger unnötige Optionen. Ein klarerer Ausgangspunkt für Suche und Entscheidung. In ausgewählten Fällen erhalten Käufer zudem Zugang zu Off-Market-Angeboten, die öffentlich nicht breit verfügbar sind.
Für Partner bietet Famalo mehr Sichtbarkeit bei einer Zielgruppe, die aktiv sucht, finanziell qualifiziert ist und bereit ist zu handeln. Das führt zu relevanteren Anfragen und einer besseren Verbindung zwischen Angebot und echtem Interesse.
Auf echtem Käuferinteresse aufgebaut. Intelligentere Zuordnung. Mehr Relevanz von Anfang an.

Weltweit mit Famalo verkaufen
Erreichen Sie seriöse internationale Käufer. Arbeiten Sie mit vorab geprüften Kunden.
Auf der Grundlage von Daten und präzisem Marketing
Mit Unterstützung des Famalo Buyers Club
Ich bestätige, dass ich die Allgemeine Geschäftsbedingungen für Käufer und die Datenschutzbestimmungen gelesen habe und ihnen zustimme.
/hr/prod/real-estate/8866/img_0/modernes-freistehendes-haus-mit-funf-wohnungen-in-erster-reihe-zum-meer-1.webp)
/hr/prod/real-estate/8866/img_1/modernes-freistehendes-haus-mit-funf-wohnungen-in-erster-reihe-zum-meer-2.webp)
/hr/prod/real-estate/8866/img_2/modernes-freistehendes-haus-mit-funf-wohnungen-in-erster-reihe-zum-meer-3.webp)
/hr/prod/real-estate/8866/img_3/modernes-freistehendes-haus-mit-funf-wohnungen-in-erster-reihe-zum-meer-4.webp)