/hr/prod/real-estate/2575/5OSLYE3LDGY75HXYLYL4E1M3WY1F/apartamento-de-dos-dormitorios-en-venta-en-split-west-waterfront-en-croacia.webp)
Apartamento de dos dormitorios en venta en Split, West Waterfront en Croacia
Estado de preparación del inmueble
Piso de dos dormitorios en venta se encuentra en la costa oeste de Split, en una zona tranquila y atractiva de la ciudad. El piso tiene una superficie de 101 m² y está situado en la tercera planta de un edificio residencial bien mantenido, con orientación norte-sur que garantiza una óptima luz natural durante todo el día.
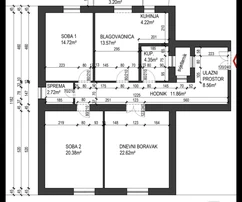
Distribución y características del piso
El piso incluye un recibidor, una cocina con comedor, un amplio salón, dos dormitorios cómodos, un baño, un práctico trastero y un balcón que ofrece espacio adicional para relajarse. Esta distribución lo hace perfecto para la vida familiar o como inversión para alquiler.
Ubicación privilegiada y potencial
Lo que distingue a esta propiedad es su excelente ubicación en la costa oeste, cerca de todos los servicios esenciales, el paseo marítimo y el mar. El piso ofrece un gran potencial de personalización para adaptarse a tus preferencias, aumentando aún más su valor de mercado.
Para más información sobre este piso en venta en Split, no dudes en contactarnos. Esta propiedad es una oportunidad excepcional para vivir o invertir en una de las zonas más codiciadas de Split.
Si deseas explorar más pisos similares en atractivas ubicaciones junto al mar, consulta los anuncios en la página de Split real estate, donde encontrarás una variedad de propiedades ideales para vivir o invertir en el corazón de Dalmacia. Aquí descubrirás pisos, villas de lujo y casas en ubicaciones privilegiadas con infraestructuras de primer nivel.
Todas las propiedades disponibles y ofertas premium en la región: Split
/central/prod/contact/37/01KFFPCGH78HYVDM5K33B56TDY/famalo.png)
En el mercado inmobiliario premium, el reto no es encontrar propiedades. Es saber cuáles realmente merecen tu atención.
Ahí es donde entra Famalo. Famalo es una plataforma inmobiliaria moderna diseñada para que las decisiones iniciales sobre propiedades sean más claras, rápidas y enfocadas.
Para los compradores, Famalo ofrece una selección de propiedades más relevante basada en preferencias reales, lo que ayuda a reducir el ruido y crear un punto de partida más claro para la búsqueda y la toma de decisiones. En algunos casos, los compradores también pueden acceder a propiedades fuera de mercado que no están ampliamente visibles en el mercado abierto.
Para los partners, Famalo proporciona una mayor visibilidad ante una audiencia que está activamente buscando, cuenta con capacidad financiera y está lista para actuar. Esto se traduce en consultas más relevantes y una mejor alineación entre visibilidad e interés real de los compradores.
Construido en torno a la intención real del comprador. Una selección de propiedades más inteligente. Mayor relevancia desde el principio.

Vende globalmente con Famalo
Dirígete a compradores internacionales serios. Trabaja con clientes precalificados.
Basado en datos y marketing preciso
Con el apoyo de Famalo Buyers Club
Confirmo que he leído y acepto los Términos y condiciones para compradores y la política de privacidad.
/hr/prod/real-estate/2575/CN2FHVB3P09R07UHRQRLW1SQT9UR/apartamento-de-dos-dormitorios-en-venta-en-split-west-waterfront-en-croacia-1.webp)
/hr/prod/real-estate/2575/JEBQYAVN9QAAELNKCPTRLNAVUOQK/apartamento-de-dos-dormitorios-en-venta-en-split-west-waterfront-en-croacia-2.webp)