/hr/prod/real-estate/2112/3XO3QP7RMASAI2EAHTOTOVXG3DQ5/villa-de-lujo-en-venta-justo-en-primera-linea-de-mar-en-omisinv-croacia.webp)
Villa de lujo en venta justo en primera línea de mar en Omiš, Croacia
Estado de preparación del inmueble
Presentamos una villa de lujo en venta situada en una ubicación elevada excepcional, justo en primera línea de mar cerca de la ciudad de Omiš. Esta propiedad moderna ofrece impresionantes vistas al mar Adriático y a la naturaleza mediterránea virgen, creando el entorno perfecto para la relajación y el disfrute.
Villa espaciosa con comodidades de primer nivel
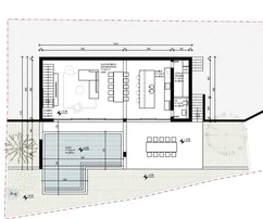
La villa se distribuye en tres niveles, diseñados cuidadosamente para el máximo confort. La primera planta cuenta con un amplio salón, comedor y una cocina contemporánea conectada a una gran terraza y a una piscina parcialmente cubierta. Este diseño de concepto abierto permite una transición fluida entre los espacios interiores y exteriores.
Privacidad y lujo en las plantas superiores
La segunda planta alberga el dormitorio principal con vestidor, baño en suite y una terraza privada con vistas al mar. La tercera planta incluye un estudio y dos dormitorios adicionales espaciosos, cada uno con su propio baño y terraza, lo que garantiza privacidad y comodidad para todos los miembros de la familia o invitados.
Solo se utilizan materiales de primera calidad y los más altos estándares de construcción en la edificación de esta propiedad. La villa estará equipada con calefacción solar, calefacción por suelo radiante en los baños, persianas eléctricas, puertas de garaje con mando a distancia y videovigilancia para mayor seguridad.
Se ha prestado especial atención al paisajismo de los terrenos, resaltando aún más la exclusividad de la propiedad. Los compradores tienen la opción de personalizar el interior según sus propias preferencias de diseño, ya que la construcción se encuentra en su fase final.
La villa en venta cuenta con aparcamiento asegurado para cuatro vehículos, lo que brinda mayor comodidad a los futuros propietarios o a sus invitados.
Esta propiedad en Omiš representa una excelente oportunidad para adquirir una vivienda de lujo en una ubicación privilegiada, ideal para retiros personales o como inversión en alquiler vacacional.
Si buscas una propiedad de lujo en el Adriático con vistas impresionantes y todas las comodidades modernas, esta villa en Omiš es un ejemplo perfecto de inversión ideal para escapadas vacacionales o alquiler turístico. Puedes encontrar más ofertas exclusivas en la categoría de villas de lujo en venta, donde te espera una amplia selección de propiedades premium a lo largo de la costa.
Todas las propiedades disponibles y ofertas premium en la región: Pučišća
/central/prod/contact/37/01KFFPCGH78HYVDM5K33B56TDY/famalo.png)
En el mercado inmobiliario premium, el reto no es encontrar propiedades. Es saber cuáles realmente merecen tu atención.
Ahí es donde entra Famalo. Famalo es una plataforma inmobiliaria moderna diseñada para que las decisiones iniciales sobre propiedades sean más claras, rápidas y enfocadas.
Para los compradores, Famalo ofrece una selección de propiedades más relevante basada en preferencias reales, lo que ayuda a reducir el ruido y crear un punto de partida más claro para la búsqueda y la toma de decisiones. En algunos casos, los compradores también pueden acceder a propiedades fuera de mercado que no están ampliamente visibles en el mercado abierto.
Para los partners, Famalo proporciona una mayor visibilidad ante una audiencia que está activamente buscando, cuenta con capacidad financiera y está lista para actuar. Esto se traduce en consultas más relevantes y una mejor alineación entre visibilidad e interés real de los compradores.
Construido en torno a la intención real del comprador. Una selección de propiedades más inteligente. Mayor relevancia desde el principio.

Vende globalmente con Famalo
Dirígete a compradores internacionales serios. Trabaja con clientes precalificados.
Basado en datos y marketing preciso
Con el apoyo de Famalo Buyers Club
Confirmo que he leído y acepto los Términos y condiciones para compradores y la política de privacidad.
/hr/prod/real-estate/2112/RBSKPP6H2PNGJDQ16D9PWT1QNR6Y/villa-de-lujo-en-venta-justo-en-primera-linea-de-mar-en-omisinv-croacia-1.webp)
/hr/prod/real-estate/2112/F4YZD14HSFZCOJRI2HNQ47U6NN7D/villa-de-lujo-en-venta-justo-en-primera-linea-de-mar-en-omisinv-croacia-2.webp)
/hr/prod/real-estate/2112/NFIVLTL52KB5YCKYWSH7RO5BB0WA/villa-de-lujo-en-venta-justo-en-primera-linea-de-mar-en-omisinv-croacia-3.webp)
/hr/prod/real-estate/2112/7N0LPVNWZLWWXNQM3FQKVTPRLFSI/villa-de-lujo-en-venta-justo-en-primera-linea-de-mar-en-omisinv-croacia-4.webp)