/hr/prod/real-estate/8431/cover/split-znjan-appartement-confortable-dune-chambre-de-59-m2-dans-un-immeuble-neuf-avec-garage.webp)
Split, Žnjan appartement confortable d'une chambre de 59 m² dans un immeuble neuf avec garage
Aperçu de la préparation du bien
Split – Žnjan appartement confortable d'une chambre de 59 m2 dans une nouvelle construction avec garage
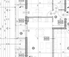
Appartement d'une chambre à Žnjan d'une superficie de 59 m2 situé dans une nouvelle construction avec garage. Il s'agit d'un appartement confortable d'une chambre au rez-de-chaussée surélevé avec une chambre, une salle de bain, un couloir et un spacieux séjour ouvert avec cuisine et salle à manger, ainsi que de grands balcons couverts spacieux attenants au séjour et à la chambre.
L'appartement est situé au rez-de-chaussée d'un immeuble résidentiel neuf à Žnjan, l'un des quartiers les plus recherchés de Split.
L'achat d'une place de parking en garage dans l'immeuble est obligatoire au prix de 25 000 EUR.
La surface habitable fermée de l'appartement est de 38 m2, avec deux balcons couverts de 7,4 m2 et 13,7 m2 attenants au séjour et à la chambre.
L'appartement est orienté sud-ouest, ce qui assure beaucoup de lumière et de soleil, enrichissant encore l'espace.
L'achèvement de la construction est prévu pour début 2027.
Toutes les propriétés disponibles et les offres premium dans la région : Solin
/central/prod/contact/37/01KFFPCGH78HYVDM5K33B56TDY/famalo.png)
Dans l’immobilier haut de gamme, le défi n’est pas de trouver des biens. Il s’agit de reconnaître ceux qui méritent réellement votre attention.
C’est précisément là que Famalo apporte une solution. Il s’agit d’une plateforme immobilière moderne qui rend les premières décisions plus claires, plus rapides et mieux orientées vers l’essentiel.
Pour les acheteurs, cela signifie une sélection plus pertinente, basée sur leurs préférences réelles. Moins de bruit inutile. Un point de départ plus clair pour la recherche et la prise de décision. Dans certains cas, les acheteurs peuvent également accéder à des biens off-market, non largement disponibles sur le marché ouvert.
Pour les partenaires, Famalo offre une meilleure visibilité auprès d’un public qui recherche activement, dispose des moyens financiers et est prêt à agir. Cela se traduit par des demandes plus qualifiées et une meilleure adéquation entre l’offre et l’intérêt réel.
Construit autour d’une intention d’achat réelle. Une sélection plus pertinente. Un meilleur départ.

Vendez à l’international avec Famalo
Atteignez des acheteurs internationaux sérieux. Travaillez avec des clients pré-qualifiés.
Guidé par les données et un marketing soigneusement ciblé
Soutenu par le Famalo Buyers Club
Je confirme avoir lu et accepté les Termes et conditions des acheteurs ainsi que la Politique de confidentialité.
/hr/prod/real-estate/8431/img_0/split-znjan-appartement-confortable-dune-chambre-de-59-m2-dans-un-immeuble-neuf-avec-garage-1.webp)
/hr/prod/real-estate/8431/img_1/split-znjan-appartement-confortable-dune-chambre-de-59-m2-dans-un-immeuble-neuf-avec-garage-2.webp)
/hr/prod/real-estate/8431/img_2/split-znjan-appartement-confortable-dune-chambre-de-59-m2-dans-un-immeuble-neuf-avec-garage-3.webp)
/hr/prod/real-estate/8431/img_3/split-znjan-appartement-confortable-dune-chambre-de-59-m2-dans-un-immeuble-neuf-avec-garage-4.webp)