/hr/prod/real-estate/1416/JC2EXWHDQA3KNSKOTF5DQL2LOFCF/tengerre-nezo-tetoteraszos-lakas-elado-horvatorszagban.webp)
Tengerre néző, tetőteraszos lakás eladó Horvátországban
Ingatlan felkészültségi állapota
Eladó lakás Zadarban – modern otthon tengerre néző panorámával
Bemutatjuk ezt a tágas eladó lakást, amely egy építés alatt álló, korszerű társasház második emeletén található, Zadar egyik vonzó részén. Az épület három szintből áll, minden emeleten két lakás kapott helyet, így a leendő lakók számára nyugodt, privát környezetet biztosít.
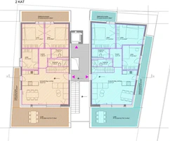
Elrendezés és főbb előnyök
A lakás teljes alapterülete 140,04 m², amely rendkívül praktikus kialakítást kínál. Az ingatlan előszobából, három hálószobából (mindegyik kijárattal a loggiára), valamint két modern fürdőszobából áll. A tágas konyha, étkező és nappali egy légtérben helyezkedik el, ahonnan fedett teraszokra lehet kilépni – tökéletes helyszín a mindennapokhoz vagy baráti, családi összejövetelekhez. A zárt lakótér mérete 82,49 m².
A lakás egyik kiemelkedő előnye a nagy tetőterasz, amely 75 m²-es, közvetlenül az otthon felett helyezkedik el, és lenyűgöző panorámát nyújt a tengerre és a zadari szigetekre. Ez a terasz további lehetőséget ad a pihenésre, napozásra vagy privát események szervezésére.
A lakáshoz két garázsbeálló is tartozik, ami különösen értékes előny a városi környezetben.
Ez az ingatlan ideális választás családi otthonnak vagy befektetésnek, hiszen minőségi kivitelezés, modern építészeti megoldások és kiváló elhelyezkedés jellemzi, minden szükséges szolgáltatás közelében.
Ha modern lakást keres gyönyörű tengerre néző kilátással Zadarban, ez az ingatlan kivételes lehetőséget kínál a kényelmes élethez vagy befektetéshez. Amennyiben további hasonló ajánlatok is érdeklik, böngéssze át az aktuális zadar-i ingatlanokat, és találja meg az ideális otthont az Adria partján.
Minden elérhető ingatlan és prémium ajánlat a(z) Bokanjac régióban
/central/prod/contact/37/01KFFPCGH78HYVDM5K33B56TDY/famalo.png)
A prémium ingatlanok piacán a kihívás nem az, hogy megtaláljuk a kínálatot. A lényeg az, hogy felismerjük, melyek érdemlik meg igazán a figyelmét.
Ebben nyújt megoldást a Famalo. Egy modern ingatlanplatform, amely segít abban, hogy az első döntések világosabbak, gyorsabbak és célzottabbak legyenek.
A vásárlók számára ez olyan kínálatot jelent, amely jobban illeszkedik a valós preferenciáikhoz. Kevesebb felesleges lehetőség. Egyértelműbb kiindulópont a kereséshez és a döntéshozatalhoz. Bizonyos esetekben a vásárlók off-market ajánlatokhoz is hozzáférhetnek, amelyek nem érhetők el széles körben a nyílt piacon.
A partnerek számára a Famalo nagyobb láthatóságot biztosít egy olyan közönség előtt, amely aktívan keres, pénzügyileg felkészült és készen áll a cselekvésre. Ez relevánsabb érdeklődéseket és jobb összhangot eredményez a kínálat és a valós kereslet között.
Valós vásárlói szándékra építve. Okosabb párosítás. Nagyobb relevancia már a kezdetektől.

Értékesítsen globálisan a Famalóval
Érjen el komoly nemzetközi vevőket. Dolgozzon előminősített ügyfelekkel.
Adatvezérelt döntések és gondosan felépítettmarketing
A Famalo Buyers Club támogatásával
Kijelentem, hogy elolvastam és elfogadom a vevőkre vonatkozó Általános Szerződési Feltételek és a Adatvédelmi tájékoztató rendelkezéseit.
/hr/prod/real-estate/1416/NDJVLJGNSUKQUZJCPXKNGQQAMRH4/tengerre-nezo-tetoteraszos-lakas-elado-horvatorszagban-1.webp)
/hr/prod/real-estate/1416/CGATBDG9B8J28QPOWQHKJ1D04GUB/tengerre-nezo-tetoteraszos-lakas-elado-horvatorszagban-2.webp)
/hr/prod/real-estate/1416/A9N95MIR3PUYRJQOKMGXHNQBAWPN/tengerre-nezo-tetoteraszos-lakas-elado-horvatorszagban-3.webp)
/hr/prod/real-estate/1416/QLO4WJTRJEOQCEMG4UTFQCNH50HR/tengerre-nezo-tetoteraszos-lakas-elado-horvatorszagban-4.webp)