/hr/prod/real-estate/3275/cover_cleaned/kastel-novi-rudine-dzialka-budowlana-600-m2-z-projektem-willi.webp)
Kaštel Novi, Rudine, działka budowlana 600 m2 z projektem willi
Podsumowanie gotowości nieruchomości
Kaštel Novi, Rudine, działka budowlana 600 m2 z pełną dokumentacją do pozwolenia na budowę (proces został rozpoczęty).
Działka posiada drogę dojazdową, wodę, prąd.
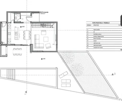
Willa miejska składałaby się z piwnicy, parteru i pierwszego piętra. (wszystko widoczne na zdjęciach)
Własność uregulowana.
Wszystkie dostępne nieruchomości i oferty premium w regionie: Kaštela
/central/prod/contact/37/01KFFPCGH78HYVDM5K33B56TDY/famalo.png)
W segmencie nieruchomości premium wyzwaniem nie jest znalezienie ofert. Kluczowe jest rozpoznanie, które naprawdę zasługują na Twoją uwagę.
Właśnie tutaj pojawia się Famalo. To nowoczesna platforma nieruchomości, która pomaga podejmować pierwsze decyzje w sposób bardziej przejrzysty, szybszy i lepiej ukierunkowany.
Dla kupujących oznacza to wybór lepiej dopasowany do ich rzeczywistych preferencji. Mniej zbędnych opcji. Jaśniejszy punkt wyjścia do poszukiwań i podejmowania decyzji. W wybranych przypadkach kupujący mogą również uzyskać dostęp do ofert off-market, które nie są szeroko dostępne na otwartym rynku.
Dla partnerów Famalo zapewnia większą widoczność wśród odbiorców, którzy aktywnie poszukują, są finansowo przygotowani i gotowi do działania. Przekłada się to na bardziej trafne zapytania oraz lepsze dopasowanie oferty do realnego zainteresowania.
Oparte na rzeczywistych intencjach kupujących. Lepsze dopasowanie. Większa trafność od samego początku.

Sprzedawaj globalnie za pomocą Famalo
Docieraj do poważnych międzynarodowych kupujących. Pracuj z wstępnie zweryfikowanymi klientami.
Na podstawie danych i precyzyjnego marketingu
Przy wsparciu Famalo Buyers Club
Potwierdzam, że przeczytałem(-am) i akceptuję Regulamin dla kupujących i Zasady ochrony danych osobowych.
/hr/prod/real-estate/3275/img_0_cleaned/kastel-novi-rudine-dzialka-budowlana-600-m2-z-projektem-willi-1.webp)
/hr/prod/real-estate/3275/img_1_cleaned/kastel-novi-rudine-dzialka-budowlana-600-m2-z-projektem-willi-2.webp)
/hr/prod/real-estate/3275/img_2_cleaned/kastel-novi-rudine-dzialka-budowlana-600-m2-z-projektem-willi-3.webp)
/hr/prod/real-estate/3275/img_3_cleaned/kastel-novi-rudine-dzialka-budowlana-600-m2-z-projektem-willi-4.webp)