/hr/prod/real-estate/3944/cover_cleaned/srima-vodice-dzialka-budowlana-710-m2-550-m-od-plazy.webp)
Srima, Vodice – działka budowlana 710 m², 550 m od plaży
Podsumowanie gotowości nieruchomości
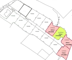
Vodice, Srima – na sprzedaż działka o regularnym kształcie, powierzchnia 710 m2. Położona w atrakcyjnej lokalizacji, w cichym otoczeniu, 550 m od plaży. Idealna pod budowę domu rodzinnego i/lub jako inwestycja. W tej lokalizacji dostępne są również trzy inne działki:
- 603 m2 – 159 000 €
- 604 m2 – 159 000 €
- 704 m2 – 179 000 €
Działki znajdują się w strefie budowlanej M, oznaczenie 1.4, gdzie zgodnie z planem dopuszcza się budowę budynków rodzinnych:
- sposób zabudowy: SS,
- Pmin.= 600 m2,
- Pmax.= 1 400 m2,
- Minimalna szerokość działki budowlanej: 16 m,
- Co najmniej 25% powierzchni działki musi być zazielenione,
- Emax.= Po+Su+Pr+2,
- Vmax.= 10,0 m,
- min.kig= 0,1 dla działek do 1 000 m2,
- najmniejsza powierzchnia zabudowy dla działek powyżej 1 000 m2 może wynosić 100 m2,
- x.kig= 0,3 dla działek do 1 000 m2,
- max.kig dla działek powyżej 1 000 m2 = 300 m2 + 0,2 (liczone tylko dla części powyżej 1 000 m2),
- max.kisN* = 0,6,
- *Do obliczenia współczynnika wykorzystania nadziemnego (kisN) nie wlicza się kondygnacji podziemnych i piwnic, jeśli są wykorzystywane wyłącznie na parking dla pojazdów w budynku lub jeśli te części budynku na poziomie gruntu są zazielenione lub mają przeznaczenie publiczne,
- PMmin.= 1,5 / 1 miejsce parkingowe.
Wszystkie dostępne nieruchomości i oferty premium w regionie: Vodice
/central/prod/contact/37/01KFFPCGH78HYVDM5K33B56TDY/famalo.png)
W segmencie nieruchomości premium wyzwaniem nie jest znalezienie ofert. Kluczowe jest rozpoznanie, które naprawdę zasługują na Twoją uwagę.
Właśnie tutaj pojawia się Famalo. To nowoczesna platforma nieruchomości, która pomaga podejmować pierwsze decyzje w sposób bardziej przejrzysty, szybszy i lepiej ukierunkowany.
Dla kupujących oznacza to wybór lepiej dopasowany do ich rzeczywistych preferencji. Mniej zbędnych opcji. Jaśniejszy punkt wyjścia do poszukiwań i podejmowania decyzji. W wybranych przypadkach kupujący mogą również uzyskać dostęp do ofert off-market, które nie są szeroko dostępne na otwartym rynku.
Dla partnerów Famalo zapewnia większą widoczność wśród odbiorców, którzy aktywnie poszukują, są finansowo przygotowani i gotowi do działania. Przekłada się to na bardziej trafne zapytania oraz lepsze dopasowanie oferty do realnego zainteresowania.
Oparte na rzeczywistych intencjach kupujących. Lepsze dopasowanie. Większa trafność od samego początku.

Sprzedawaj globalnie za pomocą Famalo
Docieraj do poważnych międzynarodowych kupujących. Pracuj z wstępnie zweryfikowanymi klientami.
Na podstawie danych i precyzyjnego marketingu
Przy wsparciu Famalo Buyers Club
Potwierdzam, że przeczytałem(-am) i akceptuję Regulamin dla kupujących i Zasady ochrony danych osobowych.
/hr/prod/real-estate/3944/img_0_cleaned/srima-vodice-dzialka-budowlana-710-m2-550-m-od-plazy-1.webp)
/hr/prod/real-estate/3944/img_1_cleaned/srima-vodice-dzialka-budowlana-710-m2-550-m-od-plazy-2.webp)
/hr/prod/real-estate/3944/img_2_cleaned/srima-vodice-dzialka-budowlana-710-m2-550-m-od-plazy-3.webp)
/hr/prod/real-estate/3944/img_3_cleaned/srima-vodice-dzialka-budowlana-710-m2-550-m-od-plazy-4.webp)