/hr/prod/real-estate/7035/cover/karigador-istrie-novy-dvojdomek-s-vyhledem-na-more.webp)
Karigador, Istrie: Nový dvojdomek s výhledem na moře
Přehled připravenosti nemovitosti
Pouhých 350 metrů od pobřeží nabízí tento krásně navržený dvojdomek v Karigadoru vzácnou příležitost vlastnit novostavbu spojující komfort, kvalitu a klidný životní styl s výhledem na moře. Dokončení je plánováno na rok 2024. Rezidence je ideálně situována poblíž Novigradu, nabízí soukromí i blízkost pláží a občanské vybavenosti.
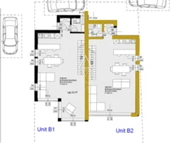
Dům má tři podlaží. Přízemí o rozloze 63,47 m² zahrnuje otevřenou kuchyň, jídelnu, toaletu (2,64 m²) a obývací pokoj (50,70 m²) s výstupem na krytou terasu (10,13 m²) a upravenou zahradu. První patro (61,05 m²) nabízí tři ložnice – Ložnice 1 (10,91 m²) s vlastní koupelnou a vstupem na balkon s výhledem na moře (10,13 m²) – zatímco Ložnice 2 (9,89 m²) a Ložnice 3 (9,89 m²) sdílejí moderní koupelnu (Koupelna 2: 4,54 m²). Chodba (10,89 m²) propojuje všechny místnosti, spolu s Koupelnou 1 (4,80 m²).
Nejvyšší patro (48,76 m²) slouží jako technická a relaxační zóna s chodbou (4,35 m²), strojovnou (0,77 m²) a vstupem na otevřenou střešní terasu (43,64 m²), ideální pro budoucí úpravy.
Celková obytná plocha činí 173,28 m², zahrada má 180 m². Rezidence zahrnuje dvě soukromá parkovací místa, klimatizaci a několik teras včetně panoramatické střešní terasy. Promyšlené dispoziční řešení a elegantní dokončení činí z domu ideální trvalý domov nebo rekreační útočiště.
Dům je jen pár minut chůze od trhu (400 m), potravin (200 m), restaurace (100 m) a pouze 4,5 km od centra Novigradu, přístavu, zdravotnických zařízení a obchodů. Letiště Pula je vzdáleno 60 km, letiště Portorož do 30 km. Známý aquapark Istralandia je jen 7 km od nemovitosti.
Karigador je klidná přímořská vesnice známá svou přírodní krásou a přístupem k nejlepším plážím Istrie. Oblast nabízí poklidnou atmosféru a zároveň zůstává pohodlně blízko pulzující kulturní, kulinářské a rekreační nabídky Novigradu.
Jednotka: B2
Všechny dostupné nemovitosti a prémiové nabídky v regionu: Novigrad
/central/prod/contact/37/01KFFPCGH78HYVDM5K33B56TDY/famalo.png)
V prémiových nemovitostech není hlavní výzvou najít nabídky. Důležité je rozpoznat ty, které si skutečně zaslouží vaši pozornost.
Právě v tom spočívá přínos Famalo. Jde o moderní realitní platformu, která pomáhá dělat první rozhodnutí při výběru nemovitosti jasněji, rychleji a s lepším zaměřením na to podstatné.
Pro kupující to znamená výběr, který více odpovídá jejich skutečným preferencím. Méně zbytečného šumu. Lepší výchozí bod pro hledání i rozhodování. V některých případech mohou získat také přístup k off-market nabídkám, které nejsou běžně dostupné na otevřeném trhu.
Pro partnery Famalo přináší lepší viditelnost před publikem, které aktivně hledá, má jasný zájem a je finančně připravené jednat. Výsledkem jsou kvalitnější kontakty a přesnější propojení mezi nabídkou a skutečným zájmem.
Postaveno na reálném zájmu. Kvalitnější výběr. Lepší začátek.

Prodávejte globálně s Famalo
Oslovte seriózní mezinárodní kupující. Pracujte s předkvalifikovanými klienty.
Na základě dat a precizního marketingu
S podporou Famalo Buyers Club
Potvrzuji, že jsem si přečetl/a a souhlasím s podmínkami Obchodní podmínky pro kupující a Zásady ochrany osobních údajů.
/hr/prod/real-estate/7035/img_0/karigador-istrie-novy-dvojdomek-s-vyhledem-na-more-1.webp)
/hr/prod/real-estate/7035/img_1/karigador-istrie-novy-dvojdomek-s-vyhledem-na-more-2.webp)
/hr/prod/real-estate/7035/img_2/karigador-istrie-novy-dvojdomek-s-vyhledem-na-more-3.webp)
/hr/prod/real-estate/7035/img_3/karigador-istrie-novy-dvojdomek-s-vyhledem-na-more-4.webp)