/hr/prod/real-estate/7035/cover/karigador-istrie-nouvelle-maison-jumelee-avec-vue-sur-la-mer.webp)
Karigador, Istrie : Nouvelle maison jumelée avec vue sur la mer
Aperçu de la préparation du bien
Située à seulement 350 mètres du littoral, cette maison jumelée magnifiquement conçue à Karigador offre une occasion rare d'acquérir une propriété neuve alliant confort, qualité et style de vie serein avec vue sur la mer. Achevée en 2024, la résidence est idéalement située près de Novigrad, offrant à la fois intimité et proximité des plages et commodités.
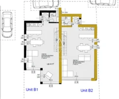
Répartie sur trois niveaux, la maison dispose d'un rez-de-chaussée de 63,47 m² avec cuisine ouverte, salle à manger, toilettes (2,64 m²) et salon (50,70 m²) ouvrant sur une terrasse couverte de 10,13 m² et un jardin paysager. Le premier étage (61,05 m²) comprend trois chambres – Chambre 1 (10,91 m²) avec salle de bain privative et accès à un balcon de 10,13 m² avec vue sur la mer – tandis que Chambre 2 (9,89 m²) et Chambre 3 (9,89 m²) partagent une salle de bain moderne (Salle de bain 2 : 4,54 m²). Un couloir (10,89 m²) relie toutes les pièces, ainsi que la Salle de bain 1 (4,80 m²).
Le dernier étage (48,76 m²) sert de zone utilitaire et de détente, avec un couloir (4,35 m²), un local technique (0,77 m²) et un accès à une terrasse sur le toit ouverte (43,64 m²) idéale pour une personnalisation future.
Avec une surface habitable totale de 173,28 m² et un jardin de 180 m², cette résidence comprend deux places de parking privées, la climatisation et plusieurs terrasses dont une terrasse panoramique sur le toit. Son agencement réfléchi et ses finitions élégantes en font une maison idéale pour y vivre à l'année ou pour les vacances.
La maison se trouve à quelques pas d'un marché (400 m), d'une épicerie (200 m), d'un restaurant (100 m) et à seulement 4,5 km du centre de Novigrad, de la marina, des établissements médicaux et des commerces. L'aéroport de Pula est à 60 km, celui de Portorož à moins de 30 km. Le célèbre parc aquatique Istralandia est à seulement 7 km de la propriété.
Karigador est un village côtier paisible réputé pour sa beauté naturelle et son accès aux plus belles plages de l'Istrie. Le quartier offre une atmosphère paisible tout en restant proche de l'animation culturelle, gastronomique et récréative de Novigrad.
Unité : B2
Toutes les propriétés disponibles et les offres premium dans la région : Novigrad
/central/prod/contact/37/01KFFPCGH78HYVDM5K33B56TDY/famalo.png)
Dans l’immobilier haut de gamme, le défi n’est pas de trouver des biens. Il s’agit de reconnaître ceux qui méritent réellement votre attention.
C’est précisément là que Famalo apporte une solution. Il s’agit d’une plateforme immobilière moderne qui rend les premières décisions plus claires, plus rapides et mieux orientées vers l’essentiel.
Pour les acheteurs, cela signifie une sélection plus pertinente, basée sur leurs préférences réelles. Moins de bruit inutile. Un point de départ plus clair pour la recherche et la prise de décision. Dans certains cas, les acheteurs peuvent également accéder à des biens off-market, non largement disponibles sur le marché ouvert.
Pour les partenaires, Famalo offre une meilleure visibilité auprès d’un public qui recherche activement, dispose des moyens financiers et est prêt à agir. Cela se traduit par des demandes plus qualifiées et une meilleure adéquation entre l’offre et l’intérêt réel.
Construit autour d’une intention d’achat réelle. Une sélection plus pertinente. Un meilleur départ.

Vendez à l’international avec Famalo
Atteignez des acheteurs internationaux sérieux. Travaillez avec des clients pré-qualifiés.
Guidé par les données et un marketing soigneusement ciblé
Soutenu par le Famalo Buyers Club
Je confirme avoir lu et accepté les Termes et conditions des acheteurs ainsi que la Politique de confidentialité.
/hr/prod/real-estate/7035/img_0/karigador-istrie-nouvelle-maison-jumelee-avec-vue-sur-la-mer-1.webp)
/hr/prod/real-estate/7035/img_1/karigador-istrie-nouvelle-maison-jumelee-avec-vue-sur-la-mer-2.webp)
/hr/prod/real-estate/7035/img_2/karigador-istrie-nouvelle-maison-jumelee-avec-vue-sur-la-mer-3.webp)
/hr/prod/real-estate/7035/img_3/karigador-istrie-nouvelle-maison-jumelee-avec-vue-sur-la-mer-4.webp)