/hr/prod/real-estate/1857/NZ91BEJMDCEKZNUONPKSCYRERHB6/luxusni-vila-na-prodej-ve-vodnjanu-nedaleko-more-v-chorvatsku.webp)
Luxusní vila na prodej ve Vodnjanu nedaleko moře v Chorvatsku
Přehled připravenosti nemovitosti
Luxusní vila na prodej ve Vodnjanu – Klidná lokalita blízko moře
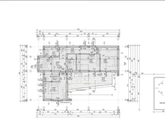
Představujeme luxusní vilu na prodej situovanou v tiché části Peroje, Vodnjan, jen 450 m od nádherných pláží a Jaderského moře. Tato moderní nemovitost označená písmenem C nabízí 200 m² obytné plochy a nachází se na rozlehlém pozemku o velikosti 600 m², což zajišťuje dostatek soukromí a možnost relaxace v přírodě.
Velkorysý interiér a praktické uspořádání
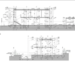
Vila má přízemí a patro. V přízemí najdete vstupní chodbu, komoru, prostorný otevřený obývací pokoj s kuchyní a jídelnou, koupelnu, ložnici a krytou terasu o rozloze 21,57 m². V patře jsou tři pohodlné ložnice, dvě moderní koupelny a společná terasa o velikosti 21,60 m², ideální pro odpočinek.
Na zahradě je soukromý bazén o ploše 32 m² (8 m x 4 m), který přináší další komfort a potěšení během letních dnů.
Vila je vybavena podlahovým vytápěním s tepelným čerpadlem a klimatizací Mitsubishi inverter pro maximální pohodlí po celý rok. Kvalitní hliníková okna se šesti komorami a trojsklem, vnější izolace z polystyrenu a fasáda obložená travertinem zaručují špičkovou energetickou účinnost a dlouhou životnost.
Nemovitost se prodává ve vysokém stavu shell & core, což budoucím majitelům umožňuje navrhnout a zařídit interiér přesně podle svých představ a potřeb. Tato nemovitost na prodej ve Vodnjanu je skvělou příležitostí pro ty, kdo hledají moderní bydlení u moře nebo chtějí investovat do turistického objektu v Chorvatsku.
Pro zájemce o koupi luxusní vily v blízkosti moře nabízí Vodnjan a oblast Peroje mimořádně atraktivní možnosti pro klidné bydlení nebo investici do turistických nemovitostí. Pokud chcete objevit další podobné nemovitosti nejvyšší úrovně na jadranském pobřeží, podívejte se na nabídku na stránce luxusní vily na prodej v Chorvatsku a najděte svůj ideální domov nebo investici.
Všechny dostupné nemovitosti a prémiové nabídky v regionu: Peroj
/central/prod/contact/37/01KFFPCGH78HYVDM5K33B56TDY/famalo.png)
V prémiových nemovitostech není hlavní výzvou najít nabídky. Důležité je rozpoznat ty, které si skutečně zaslouží vaši pozornost.
Právě v tom spočívá přínos Famalo. Jde o moderní realitní platformu, která pomáhá dělat první rozhodnutí při výběru nemovitosti jasněji, rychleji a s lepším zaměřením na to podstatné.
Pro kupující to znamená výběr, který více odpovídá jejich skutečným preferencím. Méně zbytečného šumu. Lepší výchozí bod pro hledání i rozhodování. V některých případech mohou získat také přístup k off-market nabídkám, které nejsou běžně dostupné na otevřeném trhu.
Pro partnery Famalo přináší lepší viditelnost před publikem, které aktivně hledá, má jasný zájem a je finančně připravené jednat. Výsledkem jsou kvalitnější kontakty a přesnější propojení mezi nabídkou a skutečným zájmem.
Postaveno na reálném zájmu. Kvalitnější výběr. Lepší začátek.

Prodávejte globálně s Famalo
Oslovte seriózní mezinárodní kupující. Pracujte s předkvalifikovanými klienty.
Na základě dat a precizního marketingu
S podporou Famalo Buyers Club
Potvrzuji, že jsem si přečetl/a a souhlasím s podmínkami Obchodní podmínky pro kupující a Zásady ochrany osobních údajů.
/hr/prod/real-estate/1857/AXZVDMHS28LYD93WA11KTKQUEOLT/luxusni-vila-na-prodej-ve-vodnjanu-nedaleko-more-v-chorvatsku-1.webp)
/hr/prod/real-estate/1857/B7E9PJUXSTIUFQI2FNRS9E8GSEV0/luxusni-vila-na-prodej-ve-vodnjanu-nedaleko-more-v-chorvatsku-2.webp)
/hr/prod/real-estate/1857/PHZN0KYQKCK9FZZTMNL0B3SQ2QB1/luxusni-vila-na-prodej-ve-vodnjanu-nedaleko-more-v-chorvatsku-3.webp)
/hr/prod/real-estate/1857/KYKGLY5ASWBIIZZEAJUFUIKWDXD8/luxusni-vila-na-prodej-ve-vodnjanu-nedaleko-more-v-chorvatsku-4.webp)