/hr/prod/real-estate/1857/NZ91BEJMDCEKZNUONPKSCYRERHB6/luxusna-vila-na-predaj-vo-vodnjane-nedaleko-mora-v-chorvatsku.webp)
Luxusná vila na predaj vo Vodnjane neďaleko mora v Chorvátsku
Prehľad pripravenosti nehnuteľnosti
Luxusná vila na predaj vo Vodnjane – Pokojná lokalita blízko mora
Predstavujeme luxusnú vilu na predaj situovanú v tichej časti Peroja, Vodnjan, len 450 m od nádherných pláží a Jadranského mora. Táto moderná nehnuteľnosť s označením C má rozlohu 200 m² a nachádza sa na priestrannom pozemku s výmerou 600 m², ktorý poskytuje dostatok súkromia a možnosti na oddych v prírode.
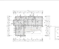
Priestranný interiér a praktické dispozičné riešenie
Vila pozostáva z prízemia a poschodia. Na prízemí sa nachádza vstupná chodba, komora, veľkorysý otvorený obývací priestor s kuchyňou a jedálňou, kúpeľňa, spálňa a krytá terasa s rozlohou 21,57 m². Na poschodí sú tri pohodlné spálne, dve moderné kúpeľne a spoločná terasa s výmerou 21,60 m², ideálna na relax.
Na pozemku je súkromný bazén s rozlohou 32 m² (8 m x 4 m), ktorý poskytuje ďalšiu pridanú hodnotu a potešenie počas letných dní.
Vila je vybavená podlahovým vykurovaním na tepelné čerpadlo a klimatizáciou Mitsubishi inverter klimatizáciou pre maximálny komfort počas celého roka. Kvalitné ALU okná so šesťkomorovým profilom a trojsklom, vonkajšia izolácia zo styroporu a fasáda obložená travertínom zaručujú špičkovú energetickú efektivitu a dlhú životnosť.
Nehnuteľnosť sa predáva vo vysokom štádiu holodomu, čo budúcim majiteľom umožňuje zariadiť si interiér podľa vlastných predstáv a potrieb. Táto nehnuteľnosť na predaj vo Vodnjane je skvelou príležitosťou pre tých, ktorí hľadajú moderné bývanie pri mori alebo chcú investovať do turistického objektu v Chorvátsku.
Pre záujemcov o kúpu luxusnej vily v blízkosti mora ponúkajú Vodnjan a oblasť Peroja mimoriadne atraktívne možnosti na pokojné bývanie alebo investíciu do turistických nehnuteľností. Ak chcete objaviť ďalšie podobné exkluzívne objekty na jadranskom pobreží, pozrite si ponuku na stránke luxusné vily na predaj v Chorvátsku a nájdite si svoj ideálny domov alebo investičnú príležitosť.
Všetky dostupné nehnuteľnosti a prémiové ponuky v regióne: Peroj
/central/prod/contact/37/01KFFPCGH78HYVDM5K33B56TDY/famalo.png)
V prémiových nehnuteľnostiach nie je hlavnou výzvou nájsť ponuky. Dôležité je vedieť rozpoznať tie, ktoré si naozaj zaslúžia vašu pozornosť.
Práve v tom je Famalo prínosom. Je to moderná realitná platforma, ktorá pomáha robiť prvé rozhodnutia pri výbere nehnuteľnosti jasnejšie, rýchlejšie a s lepším zameraním na to podstatné.
Pre kupujúcich to znamená výber, ktorý viac zodpovedá ich skutočným preferenciám, menej zbytočného šumu a lepší východiskový bod pri hľadaní aj rozhodovaní. V niektorých prípadoch môžu získať aj prístup k off-market ponukám, ktoré nie sú bežne dostupné na otvorenom trhu.
Pre partnerov Famalo prináša lepšiu viditeľnosť pred publikom, ktoré aktívne hľadá, má jasný záujem a je finančne schopné konať. Výsledkom sú kvalitnejšie kontakty a presnejšie prepojenie medzi ponukou a skutočným záujmom.
Postavené na reálnom záujme. Kvalitnejší výber. Lepší začiatok.

Predávajte globálne s Famalo
Oslovte serióznych medzinárodných kupujúcich. Pracujte s predkvalifikovanými klientmi.
Na základe dát a precízneho marketingu
S podporou Famalo Buyers Club
Potvrdzujem, že som si prečítal/a a súhlasím s Všeobecné obchodné podmienky pre kupujúcich a Zásady ochrany osobných údajov.
/hr/prod/real-estate/1857/AXZVDMHS28LYD93WA11KTKQUEOLT/luxusna-vila-na-predaj-vo-vodnjane-nedaleko-mora-v-chorvatsku-1.webp)
/hr/prod/real-estate/1857/B7E9PJUXSTIUFQI2FNRS9E8GSEV0/luxusna-vila-na-predaj-vo-vodnjane-nedaleko-mora-v-chorvatsku-2.webp)
/hr/prod/real-estate/1857/PHZN0KYQKCK9FZZTMNL0B3SQ2QB1/luxusna-vila-na-predaj-vo-vodnjane-nedaleko-mora-v-chorvatsku-3.webp)
/hr/prod/real-estate/1857/KYKGLY5ASWBIIZZEAJUFUIKWDXD8/luxusna-vila-na-predaj-vo-vodnjane-nedaleko-mora-v-chorvatsku-4.webp)