/hr/prod/real-estate/1951/ATIEONKGLXOCLXDTAHPFYUJA3XX6/moderne-villa-mit-pool-in-marcana-zu-verkaufen-in-kroatien.webp)
Moderne Villa mit Pool in Marčana zu verkaufen in Kroatien
Objekt-Bereitschaft im Überblick
Exklusive moderne Villa zum Verkauf in Marčana
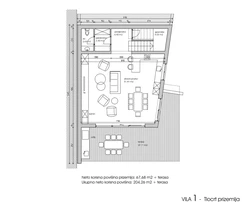
Wir präsentieren Ihnen eine moderne Villa im Bau an einer erstklassigen Lage in Duga Uvala, Istrien. Diese Immobilie mit einer Fläche von 248 m² befindet sich nur 300 Meter vom Meer entfernt und bietet einen erstklassigen Meerblick. Die Villa erstreckt sich über das Erdgeschoss, das erste und das zweite Obergeschoss, was eine besonders funktionale Raumaufteilung ermöglicht.
Großzügigkeit, Komfort und Luxus
In der Villa befinden sich vier Schlafzimmer, jeweils mit eigenem Bad, sowie ein zusätzliches Gäste-WC im Erdgeschoss. Das großzügige Wohnzimmer mit Küche von 51,81 m² bietet den perfekten Rahmen für Familienzusammenkünfte und entspannte Stunden. Im Erdgeschoss gibt es außerdem eine Garderobe, ein WC und einen Abstellraum mit 5 m². Im Außenbereich erwartet Sie ein Pool mit 30 m², eine Sonnenterrasse, ein Grillplatz sowie eine überdachte Terrasse, die zum ganztägigen Verweilen einlädt.
Im ersten Obergeschoss befinden sich zwei große Schlafzimmer (18 und 17 m²) mit Zugang zu einer weitläufigen Terrasse von 35 m², zwei Bäder und zusätzlicher Platz für eine Garderobe. Das zweite Obergeschoss bietet zwei weitere Schlafzimmer, Bäder, eine große Terrasse und einen Raum, der als Waschküche genutzt werden kann.
Die Villa wird nach neuesten Standards mit hochwertigen Materialien gebaut, und die Außenbereiche sind harmonisch in die mediterrane Umgebung eingebettet. Das großzügige Grundstück bietet Parkmöglichkeiten für vier Fahrzeuge und sorgt so für zusätzlichen Komfort im Alltag.
Die Nähe zum Meer, der Panoramablick und das moderne Design machen diese Villa zu einer außergewöhnlichen Investitionsmöglichkeit oder einem luxuriösen Familiendomizil. Der Verkauf erfolgt nach dem „Schlüsselfertig“-Prinzip, sodass ein schneller und unkomplizierter Einzug möglich ist.
Diese moderne Villa in Marčana ist ideal für alle, die eine luxuriöse Immobilie in Istrien in Meeresnähe und mit allen Annehmlichkeiten des modernen Lebens suchen. Wenn Sie an ähnlichen Objekten in dieser Region Kroatiens interessiert sind, entdecken Sie das vielfältige Angebot auf der Seite Immobilien Istrien und finden Sie Ihr perfektes Zuhause oder eine attraktive Investitionsgelegenheit an der Adriaküste.
Alle verfügbaren Immobilien und Premium-Angebote in der Region: Marčana
/central/prod/contact/37/01KFFPCGH78HYVDM5K33B56TDY/famalo.png)
Im Premium-Immobiliensegment besteht die Herausforderung nicht darin, Objekte zu finden. Entscheidend ist zu erkennen, welche wirklich Ihre Aufmerksamkeit verdienen.
Genau hier setzt Famalo an. Es ist eine moderne Immobilienplattform, die dabei hilft, erste Entscheidungen klarer, schneller und gezielter zu treffen.
Für Käufer bedeutet das eine Auswahl, die stärker auf tatsächlichen Präferenzen basiert. Weniger unnötige Optionen. Ein klarerer Ausgangspunkt für Suche und Entscheidung. In ausgewählten Fällen erhalten Käufer zudem Zugang zu Off-Market-Angeboten, die öffentlich nicht breit verfügbar sind.
Für Partner bietet Famalo mehr Sichtbarkeit bei einer Zielgruppe, die aktiv sucht, finanziell qualifiziert ist und bereit ist zu handeln. Das führt zu relevanteren Anfragen und einer besseren Verbindung zwischen Angebot und echtem Interesse.
Auf echtem Käuferinteresse aufgebaut. Intelligentere Zuordnung. Mehr Relevanz von Anfang an.

Weltweit mit Famalo verkaufen
Erreichen Sie seriöse internationale Käufer. Arbeiten Sie mit vorab geprüften Kunden.
Auf der Grundlage von Daten und präzisem Marketing
Mit Unterstützung des Famalo Buyers Club
Ich bestätige, dass ich die Allgemeine Geschäftsbedingungen für Käufer und die Datenschutzbestimmungen gelesen habe und ihnen zustimme.
/hr/prod/real-estate/1951/IMOWXQ9Y4A9QJJRGLKVAG0KAQQJ9/moderne-villa-mit-pool-in-marcana-zu-verkaufen-in-kroatien-1.webp)
/hr/prod/real-estate/1951/QH8EJLJZ6GN41X1QVFEVK0UJUB8G/moderne-villa-mit-pool-in-marcana-zu-verkaufen-in-kroatien-2.webp)
/hr/prod/real-estate/1951/AJVRY4MMGM63PUI5DEC3C6HVS9VL/moderne-villa-mit-pool-in-marcana-zu-verkaufen-in-kroatien-3.webp)
/hr/prod/real-estate/1951/5YLL1HWDQHS0XZYPWRAJHNJCEUFG/moderne-villa-mit-pool-in-marcana-zu-verkaufen-in-kroatien-4.webp)