/hr/prod/real-estate/1951/ATIEONKGLXOCLXDTAHPFYUJA3XX6/villa-moderne-avec-piscine-a-vendre-a-marcana-en-croatie.webp)
Villa moderne avec piscine à vendre à Marčana en Croatie
Aperçu de la préparation du bien
Villa moderne de haut niveau à vendre à Marčana
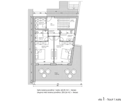
Nous présentons une villa moderne en construction dans le prestigieux emplacement de Duga Uvala, en Istrie. Cette propriété s'étend sur 248 m² et est située à seulement 300 mètres de la mer, offrant une vue mer de première classe. La villa est répartie au rez-de-chaussée, au premier et au deuxième étage, offrant un agencement exceptionnellement fonctionnel.
Espace, confort et luxe
La villa dispose de quatre chambres, chacune avec sa propre salle de bain, plus une salle d'eau supplémentaire au rez-de-chaussée. Le vaste salon et coin cuisine de 51,81 m² est parfait pour les réunions de famille et la détente. Le rez-de-chaussée comprend également un dressing, une salle d'eau et un débarras de 5 m². La cour paysagée dispose d'une piscine extérieure de 30 m², d'une terrasse bien exposée, d'un barbecue et d'une terrasse couverte pour en profiter toute la journée.
Au premier étage, il y a deux grandes chambres (18 et 17 m²) avec accès à une spacieuse terrasse de 35 m², ainsi que deux salles de bains et un placard supplémentaire. Le deuxième étage offre deux chambres supplémentaires, des salles de bains, une grande terrasse et une pièce pouvant servir de coin buanderie.
Construit selon les dernières normes avec des matériaux de haute qualité, l'extérieur de la villa est soigneusement intégré dans l'environnement méditerranéen. La cour généreuse permet de garer quatre voitures, améliorant encore le confort au quotidien.
La proximité de la mer, les vues panoramiques et le design moderne font de cette villa une opportunité d'investissement exceptionnelle ou une luxueuse maison familiale. Il est vendu clé en main, permettant un emménagement rapide et sans tracas.
Cette villa moderne à Marčana est idéale pour ceux qui recherchent une propriété de luxe en Istrie, proche de la mer et équipée de toutes les commodités de la vie contemporaine. Si vous êtes intéressé par des propriétés similaires dans cette partie de la Croatie, explorez la vaste sélection sur la page Propriétés en Istrie et trouvez votre maison idéale ou votre opportunité d'investissement le long de la côte Adriatique.
Toutes les propriétés disponibles et les offres premium dans la région : Marčana
/central/prod/contact/37/01KFFPCGH78HYVDM5K33B56TDY/famalo.png)
Dans l’immobilier haut de gamme, le défi n’est pas de trouver des biens. Il s’agit de reconnaître ceux qui méritent réellement votre attention.
C’est précisément là que Famalo apporte une solution. Il s’agit d’une plateforme immobilière moderne qui rend les premières décisions plus claires, plus rapides et mieux orientées vers l’essentiel.
Pour les acheteurs, cela signifie une sélection plus pertinente, basée sur leurs préférences réelles. Moins de bruit inutile. Un point de départ plus clair pour la recherche et la prise de décision. Dans certains cas, les acheteurs peuvent également accéder à des biens off-market, non largement disponibles sur le marché ouvert.
Pour les partenaires, Famalo offre une meilleure visibilité auprès d’un public qui recherche activement, dispose des moyens financiers et est prêt à agir. Cela se traduit par des demandes plus qualifiées et une meilleure adéquation entre l’offre et l’intérêt réel.
Construit autour d’une intention d’achat réelle. Une sélection plus pertinente. Un meilleur départ.

Vendez à l’international avec Famalo
Atteignez des acheteurs internationaux sérieux. Travaillez avec des clients pré-qualifiés.
Guidé par les données et un marketing soigneusement ciblé
Soutenu par le Famalo Buyers Club
Je confirme avoir lu et accepté les Termes et conditions des acheteurs ainsi que la Politique de confidentialité.
/hr/prod/real-estate/1951/IMOWXQ9Y4A9QJJRGLKVAG0KAQQJ9/villa-moderne-avec-piscine-a-vendre-a-marcana-en-croatie-1.webp)
/hr/prod/real-estate/1951/QH8EJLJZ6GN41X1QVFEVK0UJUB8G/villa-moderne-avec-piscine-a-vendre-a-marcana-en-croatie-2.webp)
/hr/prod/real-estate/1951/AJVRY4MMGM63PUI5DEC3C6HVS9VL/villa-moderne-avec-piscine-a-vendre-a-marcana-en-croatie-3.webp)
/hr/prod/real-estate/1951/5YLL1HWDQHS0XZYPWRAJHNJCEUFG/villa-moderne-avec-piscine-a-vendre-a-marcana-en-croatie-4.webp)