/hr/prod/real-estate/5113/cover/sibenik-exklusive-wohnung-an-der-uferpromenade-erste-reihe-zum-meer-8456-m2.webp)
Sibenik, exklusive Wohnung an der Uferpromenade, erste Reihe zum Meer, 84,56 m²
Objekt-Bereitschaft im Überblick
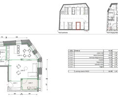
Šibenik, exklusive Wohnung an der Uferpromenade, mit einer Netto-Nutzfläche von 84,56 m². Das Gebäude befindet sich in erster Reihe zum Meer. Die Wohnung liegt im zweiten Stock, ist nach Süden ausgerichtet und verfügt über einen Stellplatz in der Garage.
Das Gebäude wurde komplett renoviert, einschließlich aller Installationen (Wasser, Strom), Böden, Wände und Außenschreinerei. Die Wohnung besteht aus einem Wohnzimmer mit Küche und Essbereich, einer Loggia, einem Badezimmer und einem Schlafzimmer. Die gesamte geschlossene Fläche der Wohnung beträgt 71,1 m².
Das Gebäude ist mit einem Aufzug ausgestattet, die Wohnung verfügt über Fußbodenheizung in allen Bereichen, Klimaanlagen in jedem Raum, dreifach verglaste Isolierfenster sowie hochwertiges Parkett, Keramik und Sanitäranlagen.
Durch ihre Lage und Ausstattung stellt das Gebäude die exklusivste Option in Šibenik dar.
Weitere Informationen auf Anfrage.
Alle verfügbaren Immobilien und Premium-Angebote in der Region: Šibenik
/central/prod/contact/37/01KFFPCGH78HYVDM5K33B56TDY/famalo.png)
Im Premium-Immobiliensegment besteht die Herausforderung nicht darin, Objekte zu finden. Entscheidend ist zu erkennen, welche wirklich Ihre Aufmerksamkeit verdienen.
Genau hier setzt Famalo an. Es ist eine moderne Immobilienplattform, die dabei hilft, erste Entscheidungen klarer, schneller und gezielter zu treffen.
Für Käufer bedeutet das eine Auswahl, die stärker auf tatsächlichen Präferenzen basiert. Weniger unnötige Optionen. Ein klarerer Ausgangspunkt für Suche und Entscheidung. In ausgewählten Fällen erhalten Käufer zudem Zugang zu Off-Market-Angeboten, die öffentlich nicht breit verfügbar sind.
Für Partner bietet Famalo mehr Sichtbarkeit bei einer Zielgruppe, die aktiv sucht, finanziell qualifiziert ist und bereit ist zu handeln. Das führt zu relevanteren Anfragen und einer besseren Verbindung zwischen Angebot und echtem Interesse.
Auf echtem Käuferinteresse aufgebaut. Intelligentere Zuordnung. Mehr Relevanz von Anfang an.

Weltweit mit Famalo verkaufen
Erreichen Sie seriöse internationale Käufer. Arbeiten Sie mit vorab geprüften Kunden.
Auf der Grundlage von Daten und präzisem Marketing
Mit Unterstützung des Famalo Buyers Club
Ich bestätige, dass ich die Allgemeine Geschäftsbedingungen für Käufer und die Datenschutzbestimmungen gelesen habe und ihnen zustimme.
/hr/prod/real-estate/5113/img_0/sibenik-exklusive-wohnung-an-der-uferpromenade-erste-reihe-zum-meer-8456-m2-1.webp)
/hr/prod/real-estate/5113/img_1/sibenik-exklusive-wohnung-an-der-uferpromenade-erste-reihe-zum-meer-8456-m2-2.webp)
/hr/prod/real-estate/5113/img_2/sibenik-exklusive-wohnung-an-der-uferpromenade-erste-reihe-zum-meer-8456-m2-3.webp)
/hr/prod/real-estate/5113/img_3/sibenik-exklusive-wohnung-an-der-uferpromenade-erste-reihe-zum-meer-8456-m2-4.webp)