/hr/prod/real-estate/5113/cover/sibenik-exkluzivny-apartman-na-nabrezi-prvy-rad-k-moru-8456-m2.webp)
Šibenik, exkluzívny apartmán na nábreží, prvý rad k moru, 84,56 m²
Prehľad pripravenosti nehnuteľnosti
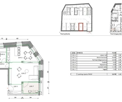
Šibenik, exkluzívny byt na nábreží, čistá úžitková plocha 84,56 m². Budova sa nachádza v prvom rade pri mori. Byt je na druhom poschodí, orientovaný na juh, s parkovacím miestom v garáži.
Budova je kompletne zrekonštruovaná, vrátane všetkých inštalácií (voda, elektrina), podláh, stien a vonkajších okien a dverí. Byt pozostáva z obývacej izby s kuchyňou a jedálňou, loggie, kúpeľne a jednej spálne. Celková uzavretá plocha bytu je 71,1 m².
Budova je vybavená výťahom, byt má podlahové kúrenie v celom priestore, klimatizáciu v každej miestnosti, trojvrstvové izolačné okná a špičkové parkety, keramiku a sanitárne zariadenia.
Vďaka svojej polohe a úprave predstavuje budova najexkluzívnejšiu možnosť v Šibeniku.
Ďalšie informácie na vyžiadanie.
Všetky dostupné nehnuteľnosti a prémiové ponuky v regióne: Šibenik
/central/prod/contact/37/01KFFPCGH78HYVDM5K33B56TDY/famalo.png)
V prémiových nehnuteľnostiach nie je hlavnou výzvou nájsť ponuky. Dôležité je vedieť rozpoznať tie, ktoré si naozaj zaslúžia vašu pozornosť.
Práve v tom je Famalo prínosom. Je to moderná realitná platforma, ktorá pomáha robiť prvé rozhodnutia pri výbere nehnuteľnosti jasnejšie, rýchlejšie a s lepším zameraním na to podstatné.
Pre kupujúcich to znamená výber, ktorý viac zodpovedá ich skutočným preferenciám, menej zbytočného šumu a lepší východiskový bod pri hľadaní aj rozhodovaní. V niektorých prípadoch môžu získať aj prístup k off-market ponukám, ktoré nie sú bežne dostupné na otvorenom trhu.
Pre partnerov Famalo prináša lepšiu viditeľnosť pred publikom, ktoré aktívne hľadá, má jasný záujem a je finančne schopné konať. Výsledkom sú kvalitnejšie kontakty a presnejšie prepojenie medzi ponukou a skutočným záujmom.
Postavené na reálnom záujme. Kvalitnejší výber. Lepší začiatok.

Predávajte globálne s Famalo
Oslovte serióznych medzinárodných kupujúcich. Pracujte s predkvalifikovanými klientmi.
Na základe dát a precízneho marketingu
S podporou Famalo Buyers Club
Potvrdzujem, že som si prečítal/a a súhlasím s Všeobecné obchodné podmienky pre kupujúcich a Zásady ochrany osobných údajov.
/hr/prod/real-estate/5113/img_0/sibenik-exkluzivny-apartman-na-nabrezi-prvy-rad-k-moru-8456-m2-1.webp)
/hr/prod/real-estate/5113/img_1/sibenik-exkluzivny-apartman-na-nabrezi-prvy-rad-k-moru-8456-m2-2.webp)
/hr/prod/real-estate/5113/img_2/sibenik-exkluzivny-apartman-na-nabrezi-prvy-rad-k-moru-8456-m2-3.webp)
/hr/prod/real-estate/5113/img_3/sibenik-exkluzivny-apartman-na-nabrezi-prvy-rad-k-moru-8456-m2-4.webp)