/hr/prod/real-estate/2219/0WQ8IU6QYME3N04LG6KVQZVXSXWU/modern-villa-for-sale-with-sea-view-in-croatia.webp)
Modern villa for sale with sea view in Croatia
Property Readiness Snapshot
Premium Villa for Sale in Duga Uvala, Istria
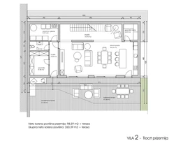
We present a modern villa for sale located in a peaceful part of Duga Uvala, just 300 meters from the sea. This 322 m² property offers a first-class sea view and exceptional comfort across three levels—ground floor, first, and second floor.
Layout and Amenities
The villa features four spacious bedrooms, each with its own bathroom, plus two additional half-baths. For complete relaxation, there is a sauna room and a fully equipped modern gym. The 50 m² open-plan living room and kitchen provide ample space for gatherings, complemented by a pantry, laundry room, and an extra 9 m² storage area.
Outdoors, you'll find a 28 m² swimming pool (dimensions 3.5 x 8 m) surrounded by a sun deck, barbecue area, and a covered terrace—perfect for relaxing on summer days. The large yard offers parking for up to four cars.
The first floor includes three bedrooms (20, 18, and 18 m²), each with an en-suite bathroom and access to a spacious covered terrace of 35 m². The second floor features an additional bedroom with a bathroom, a 20 m² fitness room, and separate rooms with a toilet, shower, and sauna. There's also a generous covered terrace of 54 m², ideal for sunbathing or installing a jacuzzi.
Constructed with top-quality materials, the villa blends seamlessly into its surroundings. Proximity to the sea and panoramic views make this property an outstanding opportunity for investment or luxurious family living in Istria.
The sale is offered on a turnkey basis. For more information about this exclusive property available in Marčana, feel free to contact us.
If you're looking for a luxury villa in a tranquil part of Istria with panoramic sea views, this property in Marčana is the perfect choice for family living or investment. The selection of upscale homes and villas in Istria is diverse, so you can explore the latest luxury villas for sale and find the ideal property to suit your needs.
All available properties and premium offers in the region: Marčana
/central/prod/contact/37/01KFFPCGH78HYVDM5K33B56TDY/famalo.png)
In premium real estate, the challenge is not finding properties. It is knowing which ones are truly worth your attention.
That is where Famalo comes in. Famalo is a modern property platform designed to make early property decisions clearer, faster, and more focused.
For buyers, Famalo brings a more relevant property selection based on real preferences, helping reduce noise and create a clearer starting point for discovery and decision-making. In selected cases, buyers may also gain access to off-market listings not widely visible on the open market.
For partners, Famalo offers stronger visibility with an audience that is actively looking, financially capable, and ready to act. This leads to more relevant enquiries and stronger alignment between visibility and real buyer interest.
Built around real buyer intent. Smarter property matching. Stronger relevance from the start.

Sell globally with Famalo
Reach serious international buyers. Work with pre-qualified clients.
Driven by data and curated marketing
Backed by the Famalo Buyers Club
I confirm that I have read and agree to the Terms and Conditions for buyers and the Privacy Policy.
/hr/prod/real-estate/2219/4OPQWPSS5BGCN16JJVRA5HWX6D9G/modern-villa-for-sale-with-sea-view-in-croatia-1.webp)
/hr/prod/real-estate/2219/GGCUVLITEVA1W8MMYGB2HQKPPSOM/modern-villa-for-sale-with-sea-view-in-croatia-2.webp)
/hr/prod/real-estate/2219/0GWY48ZIWJTZAGC0AARN3US4V4SS/modern-villa-for-sale-with-sea-view-in-croatia-3.webp)
/hr/prod/real-estate/2219/NGMWWNZYUZ2C6OQAKEPYRCDB2WOX/modern-villa-for-sale-with-sea-view-in-croatia-4.webp)