/hr/prod/real-estate/2219/0WQ8IU6QYME3N04LG6KVQZVXSXWU/moderni-vila-s-vyhledem-na-more-na-prodej-v-chorvatsku.webp)
Moderní vila s výhledem na moře na prodej v Chorvatsku
Přehled připravenosti nemovitosti
Špičková vila na prodej v Duga Uvali, Istrie
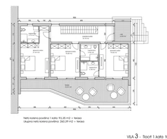
Představujeme moderní vilu k prodeji umístěnou v klidné části Duga Uvala, pouhých 300 m od moře. Tato nemovitost o rozloze 322 m² nabízí prvotřídní výhled na moře a mimořádné pohodlí na třech podlažích – přízemí, první a druhé patro.
Dispozice a vybavení
Vila zahrnuje čtyři prostorné ložnice, každou s vlastní koupelnou, navíc jsou k dispozici dvě samostatné toalety. Pro maximální relaxaci je zde místnost se saunou a moderně vybavená posilovna. Obývací pokoj s kuchyní o ploše 50 m² poskytuje dostatek prostoru pro setkávání, prakticky je doplněn spíží, prádelnou a dalším úložným prostorem o velikosti 9 m².
V exteriéru se nachází bazén o rozloze 28 m² (rozměry 3,5 x 8 m) obklopený sluneční terasou, grilem a krytou terasou, což je ideální pro odpočinek během letních dnů. Prostorný dvůr umožňuje parkování až čtyř vozů.
V prvním patře jsou tři ložnice (20, 18 a 18 m²), každá s koupelnou a vstupem na velkou krytou terasu o ploše 35 m². Druhé patro nabízí další ložnici s koupelnou, fitness místnost o rozloze 20 m² a samostatné prostory s toaletou, sprchou a saunou. Nechybí ani rozlehlá krytá terasa o velikosti 54 m², vhodná pro slunění či umístění vířivky.
Vila je postavena z nejkvalitnějších materiálů a dokonale zapadá do okolního prostředí. Blízkost moře a panoramatický výhled dělají z této nemovitosti vynikající příležitost pro investici nebo luxusní rodinné bydlení v Istrii.
Prodej probíhá formou „na klíč“. Pro více informací o této exkluzivní nemovitosti v Marčani nás neváhejte kontaktovat.
Pokud hledáte luxusní vilu v klidné části Istrie s panoramatickým výhledem na moře, tato nemovitost v Marčani je ideální volbou pro rodinné bydlení nebo investici. Nabídka luxusních domů a vil v Istrii je pestrá, proto můžete prozkoumat nejnovější luxusní vily na prodej a najít ideální nemovitost, která bude odpovídat vašim požadavkům.
Všechny dostupné nemovitosti a prémiové nabídky v regionu: Marčana
/central/prod/contact/37/01KFFPCGH78HYVDM5K33B56TDY/famalo.png)
V prémiových nemovitostech není hlavní výzvou najít nabídky. Důležité je rozpoznat ty, které si skutečně zaslouží vaši pozornost.
Právě v tom spočívá přínos Famalo. Jde o moderní realitní platformu, která pomáhá dělat první rozhodnutí při výběru nemovitosti jasněji, rychleji a s lepším zaměřením na to podstatné.
Pro kupující to znamená výběr, který více odpovídá jejich skutečným preferencím. Méně zbytečného šumu. Lepší výchozí bod pro hledání i rozhodování. V některých případech mohou získat také přístup k off-market nabídkám, které nejsou běžně dostupné na otevřeném trhu.
Pro partnery Famalo přináší lepší viditelnost před publikem, které aktivně hledá, má jasný zájem a je finančně připravené jednat. Výsledkem jsou kvalitnější kontakty a přesnější propojení mezi nabídkou a skutečným zájmem.
Postaveno na reálném zájmu. Kvalitnější výběr. Lepší začátek.

Prodávejte globálně s Famalo
Oslovte seriózní mezinárodní kupující. Pracujte s předkvalifikovanými klienty.
Na základě dat a precizního marketingu
S podporou Famalo Buyers Club
Potvrzuji, že jsem si přečetl/a a souhlasím s podmínkami Obchodní podmínky pro kupující a Zásady ochrany osobních údajů.
/hr/prod/real-estate/2219/4OPQWPSS5BGCN16JJVRA5HWX6D9G/moderni-vila-s-vyhledem-na-more-na-prodej-v-chorvatsku-1.webp)
/hr/prod/real-estate/2219/GGCUVLITEVA1W8MMYGB2HQKPPSOM/moderni-vila-s-vyhledem-na-more-na-prodej-v-chorvatsku-2.webp)
/hr/prod/real-estate/2219/0GWY48ZIWJTZAGC0AARN3US4V4SS/moderni-vila-s-vyhledem-na-more-na-prodej-v-chorvatsku-3.webp)
/hr/prod/real-estate/2219/NGMWWNZYUZ2C6OQAKEPYRCDB2WOX/moderni-vila-s-vyhledem-na-more-na-prodej-v-chorvatsku-4.webp)