/hr/prod/real-estate/2219/0WQ8IU6QYME3N04LG6KVQZVXSXWU/villa-moderna-en-venta-con-vista-al-mar-en-croacia.webp)
Villa moderna en venta con vista al mar en Croacia
Estado de preparación del inmueble
Villa de lujo en venta en Duga Uvala, Istria
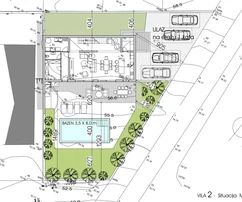
Presentamos una villa moderna en venta ubicada en una zona tranquila de Duga Uvala, a solo 300 metros del mar. Esta propiedad de 322 m² ofrece una vista al mar de primera clase y un confort excepcional distribuidos en tres niveles: planta baja, primer y segundo piso.
Distribución y comodidades
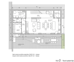
La villa cuenta con cuatro amplios dormitorios, cada uno con su propio baño, además de dos aseos adicionales. Para una relajación total, dispone de una sala de sauna y un gimnasio moderno totalmente equipado. El salón y la cocina de concepto abierto de 50 m² ofrecen un amplio espacio para reuniones, complementados por una despensa, lavandería y un área de almacenamiento adicional de 9 m².
En el exterior, encontrará una piscina de 28 m² (dimensiones 3,5 x 8 m) rodeada de una terraza solárium, zona de barbacoa y una terraza cubierta, perfecta para relajarse en los días de verano. El amplio jardín ofrece estacionamiento para hasta cuatro autos.
El primer piso incluye tres dormitorios (20, 18 y 18 m²), cada uno con baño en suite y acceso a una espaciosa terraza cubierta de 35 m². El segundo piso cuenta con un dormitorio adicional con baño, una sala de fitness de 20 m² y habitaciones separadas con inodoro, ducha y sauna. También hay una generosa terraza cubierta de 54 m², ideal para tomar el sol o instalar un jacuzzi.
Construida con materiales de primera calidad, la villa se integra perfectamente en su entorno. La proximidad al mar y las vistas panorámicas hacen de esta propiedad una oportunidad excepcional para invertir o disfrutar de una vida familiar lujosa en Istria.
La venta se ofrece llave en mano. Para más información sobre esta exclusiva propiedad disponible en Marčana, no dude en contactarnos.
Si busca una villa de lujo en una zona tranquila de Istria con vistas panorámicas al mar, esta propiedad en Marčana es la elección perfecta para vivir en familia o invertir. La selección de casas y villas exclusivas en Istria es diversa, por lo que puede explorar las últimas villas de lujo en venta y encontrar la propiedad ideal que se adapte a sus necesidades.
Todas las propiedades disponibles y ofertas premium en la región: Marčana
/central/prod/contact/37/01KFFPCGH78HYVDM5K33B56TDY/famalo.png)
En el mercado inmobiliario premium, el reto no es encontrar propiedades. Es saber cuáles realmente merecen tu atención.
Ahí es donde entra Famalo. Famalo es una plataforma inmobiliaria moderna diseñada para que las decisiones iniciales sobre propiedades sean más claras, rápidas y enfocadas.
Para los compradores, Famalo ofrece una selección de propiedades más relevante basada en preferencias reales, lo que ayuda a reducir el ruido y crear un punto de partida más claro para la búsqueda y la toma de decisiones. En algunos casos, los compradores también pueden acceder a propiedades fuera de mercado que no están ampliamente visibles en el mercado abierto.
Para los partners, Famalo proporciona una mayor visibilidad ante una audiencia que está activamente buscando, cuenta con capacidad financiera y está lista para actuar. Esto se traduce en consultas más relevantes y una mejor alineación entre visibilidad e interés real de los compradores.
Construido en torno a la intención real del comprador. Una selección de propiedades más inteligente. Mayor relevancia desde el principio.

Vende globalmente con Famalo
Dirígete a compradores internacionales serios. Trabaja con clientes precalificados.
Basado en datos y marketing preciso
Con el apoyo de Famalo Buyers Club
Confirmo que he leído y acepto los Términos y condiciones para compradores y la política de privacidad.
/hr/prod/real-estate/2219/4OPQWPSS5BGCN16JJVRA5HWX6D9G/villa-moderna-en-venta-con-vista-al-mar-en-croacia-1.webp)
/hr/prod/real-estate/2219/GGCUVLITEVA1W8MMYGB2HQKPPSOM/villa-moderna-en-venta-con-vista-al-mar-en-croacia-2.webp)
/hr/prod/real-estate/2219/0GWY48ZIWJTZAGC0AARN3US4V4SS/villa-moderna-en-venta-con-vista-al-mar-en-croacia-3.webp)
/hr/prod/real-estate/2219/NGMWWNZYUZ2C6OQAKEPYRCDB2WOX/villa-moderna-en-venta-con-vista-al-mar-en-croacia-4.webp)