/hr/prod/real-estate/7854/cover/istrie-sisan-terrain-constructible-avec-permis-et-projet.webp)
Istrie, Sisan : Terrain constructible avec permis et projet
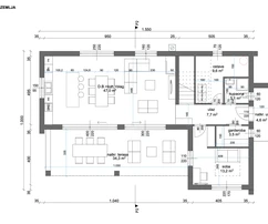
Aperçu de la préparation du bien
Dans un quartier recherché et calme de Šišan, ce terrain constructible de 825 m² représente une opportunité exceptionnelle pour les acheteurs souhaitant développer un bien immobilier en Istrie. Le terrain est proposé avec un permis de construire approuvé pour une maison familiale moderne à deux étages avec piscine, permettant un démarrage rapide et efficace des travaux.
Un projet architectural entièrement achevé est déjà en place, ce qui réduit considérablement le temps de préparation et permet au futur propriétaire de commencer la construction sans phases de planification supplémentaires. Le projet a été soigneusement conçu pour allier fonctionnalité, confort et design contemporain, avec un accent particulier sur la confidentialité et la qualité de vie. Le bien prévu convient aussi bien à une résidence principale qu'à un investissement locatif touristique à fort potentiel.
Un avantage important est que le permis de construire devient légalement valable le 16.04., permettant de commencer les travaux presque immédiatement. Cela élimine les retards administratifs et ajoute une valeur considérable à l'investissement, rendant l'ensemble du processus de développement plus rapide et plus sûr.
Šišan offre un environnement résidentiel paisible tout en restant bien relié à des destinations clés telles que Pula. La région est connue pour son caractère istrien authentique, son environnement naturel et sa proximité avec de magnifiques plages le long de la côte sud. Avec un accès facile aux infrastructures, restaurants et installations de loisirs, elle offre un équilibre idéal entre tranquillité et commodité.
C'est une excellente opportunité pour les investisseurs ou les acheteurs privés de construire une maison sur mesure dans l'un des endroits les plus recherchés d'Istrie.
Toutes les propriétés disponibles et les offres premium dans la région : Ližnjan
/central/prod/contact/37/01KFFPCGH78HYVDM5K33B56TDY/famalo.png)
Dans l’immobilier haut de gamme, le défi n’est pas de trouver des biens. Il s’agit de reconnaître ceux qui méritent réellement votre attention.
C’est précisément là que Famalo apporte une solution. Il s’agit d’une plateforme immobilière moderne qui rend les premières décisions plus claires, plus rapides et mieux orientées vers l’essentiel.
Pour les acheteurs, cela signifie une sélection plus pertinente, basée sur leurs préférences réelles. Moins de bruit inutile. Un point de départ plus clair pour la recherche et la prise de décision. Dans certains cas, les acheteurs peuvent également accéder à des biens off-market, non largement disponibles sur le marché ouvert.
Pour les partenaires, Famalo offre une meilleure visibilité auprès d’un public qui recherche activement, dispose des moyens financiers et est prêt à agir. Cela se traduit par des demandes plus qualifiées et une meilleure adéquation entre l’offre et l’intérêt réel.
Construit autour d’une intention d’achat réelle. Une sélection plus pertinente. Un meilleur départ.

Vendez à l’international avec Famalo
Atteignez des acheteurs internationaux sérieux. Travaillez avec des clients pré-qualifiés.
Guidé par les données et un marketing soigneusement ciblé
Soutenu par le Famalo Buyers Club
Je confirme avoir lu et accepté les Termes et conditions des acheteurs ainsi que la Politique de confidentialité.
/hr/prod/real-estate/7854/img_0/istrie-sisan-terrain-constructible-avec-permis-et-projet-1.webp)
/hr/prod/real-estate/7854/img_1/istrie-sisan-terrain-constructible-avec-permis-et-projet-2.webp)
/hr/prod/real-estate/7854/img_2/istrie-sisan-terrain-constructible-avec-permis-et-projet-3.webp)