/hr/prod/real-estate/7854/cover/isztria-sisan-epitesi-telek-engedellyel-es-tervvel.webp)
Isztria, Sisan: Építési telek engedéllyel és tervvel
Ingatlan felkészültségi állapota
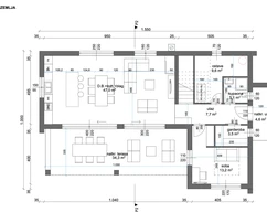
Šišan keresett és csendes részén ez a 825 m²-es építési telek kiváló lehetőséget kínál azoknak a vásárlóknak, akik ingatlanfejlesztésben gondolkodnak Isztriában. A telekhez jóváhagyott építési engedély tartozik egy modern, kétszintes családi házra úszómedencével, ami gördülékeny és hatékony építkezéskezdést tesz lehetővé.
Teljes körű építészeti terv már rendelkezésre áll, ami jelentősen lerövidíti az előkészítési időt, és lehetővé teszi a jövőbeli tulajdonos számára, hogy további tervezési fázisok nélkül kezdje meg az építkezést. A projektet gondosan úgy alakították ki, hogy ötvözze a funkcionalitást, a kényelmet és a kortárs dizájnt, különös hangsúlyt fektetve a magánéletre és az életminőségre. A tervezett ingatlan alkalmas állandó lakhatásra és magas hozamú turisztikai bérbeadásra is.
Fontos előny, hogy az építési engedély 04.16-án jogerőre emelkedik, így az építkezés szinte azonnal megkezdhető. Ez megszünteti az adminisztratív késedelmeket, és jelentősen növeli a befektetés értékét, gyorsabbá és biztonságosabbá téve a teljes fejlesztési folyamatot.
Šišan nyugodt lakókörnyezetet kínál, miközben jól kapcsolódik olyan kulcsfontosságú úti célokhoz, mint Pula. A környék híres autentikus isztriai jellegéről, természeti környezetéről és a déli part menti gyönyörű strandok közelségéről. Könnyű hozzáférés az infrastruktúrához, éttermekhez és szabadidős létesítményekhez, így ideális egyensúlyt teremt a nyugalom és a kényelem között.
Kiváló lehetőség befektetőknek vagy magánvásárlóknak, hogy egyedi otthont építsenek Isztria egyik egyre keresettebb helyszínén.
Minden elérhető ingatlan és prémium ajánlat a(z) Ližnjan régióban
/central/prod/contact/37/01KFFPCGH78HYVDM5K33B56TDY/famalo.png)
A prémium ingatlanok piacán a kihívás nem az, hogy megtaláljuk a kínálatot. A lényeg az, hogy felismerjük, melyek érdemlik meg igazán a figyelmét.
Ebben nyújt megoldást a Famalo. Egy modern ingatlanplatform, amely segít abban, hogy az első döntések világosabbak, gyorsabbak és célzottabbak legyenek.
A vásárlók számára ez olyan kínálatot jelent, amely jobban illeszkedik a valós preferenciáikhoz. Kevesebb felesleges lehetőség. Egyértelműbb kiindulópont a kereséshez és a döntéshozatalhoz. Bizonyos esetekben a vásárlók off-market ajánlatokhoz is hozzáférhetnek, amelyek nem érhetők el széles körben a nyílt piacon.
A partnerek számára a Famalo nagyobb láthatóságot biztosít egy olyan közönség előtt, amely aktívan keres, pénzügyileg felkészült és készen áll a cselekvésre. Ez relevánsabb érdeklődéseket és jobb összhangot eredményez a kínálat és a valós kereslet között.
Valós vásárlói szándékra építve. Okosabb párosítás. Nagyobb relevancia már a kezdetektől.

Értékesítsen globálisan a Famalóval
Érjen el komoly nemzetközi vevőket. Dolgozzon előminősített ügyfelekkel.
Adatvezérelt döntések és gondosan felépítettmarketing
A Famalo Buyers Club támogatásával
Kijelentem, hogy elolvastam és elfogadom a vevőkre vonatkozó Általános Szerződési Feltételek és a Adatvédelmi tájékoztató rendelkezéseit.
/hr/prod/real-estate/7854/img_0/isztria-sisan-epitesi-telek-engedellyel-es-tervvel-1.webp)
/hr/prod/real-estate/7854/img_1/isztria-sisan-epitesi-telek-engedellyel-es-tervvel-2.webp)
/hr/prod/real-estate/7854/img_2/isztria-sisan-epitesi-telek-engedellyel-es-tervvel-3.webp)