/hr/prod/real-estate/1028/AU4AUUDUZ1KSQADRZG5H3631U6GJ/villa-de-luxe-avec-piscine-a-vendre-a-primosten-en-croatie.webp)
Villa de luxe avec piscine à vendre à Primošten en Croatie
Aperçu de la préparation du bien
Villa à vendre à Primošten Resort
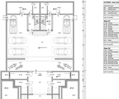
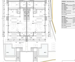
Dans le cadre paisible du Primošten Resort, vous trouverez une villa jumelée moderne avec piscine, offrant une superficie totale de 473,04 m². Cette propriété exclusive à vendre s'étend sur trois niveaux et offre un degré exceptionnel d'intimité et de confort.
Mise en page et fonctionnalités
Le sous-sol comprend un garage spacieux avec trois places de parking, ainsi que des pièces supplémentaires telles qu'un débarras, une buanderie et un local technique pour la piscine. Des escaliers intérieurs mènent au rez-de-chaussée, où vous trouverez un vaste salon avec un coin repas, une cuisine moderne, une chambre et une salle de bains. Le séjour s'ouvre sur une grande terrasse avec piscine et solarium, propice à la détente.
A l'étage, il y a trois autres chambres, chacune avec sa propre salle de bain et accès à un balcon offrant une vue impressionnante sur la mer. La villa est finie avec des matériaux haut de gamme, des systèmes de maison intelligente avancés et des détails soigneusement sélectionnés pour garantir une fonctionnalité et un style maximum.
Avantages de l'emplacement
Primošten Resort se trouve à proximité de plages de galets primées et du centre de Primošten, tout en offrant paix, intimité et vue imprenable sur l'Adriatique. Entouré d'une nature vierge, d'oliviers et de vignobles, le complexe offre un véritable sentiment d'isolement grâce à d'excellentes connexions avec les commodités urbaines, les marinas et la scène gastronomique de la côte dalmate.
Split se trouve à 60 km, Šibenik à 30 km et l'aéroport de Split à 40 km du complexe. L'achat de cette villa de luxe à vendre à Primošten est un choix prestigieux et une opportunité d'investissement unique dans l'un des développements les plus recherchés de l'Adriatique.
Les villas de luxe avec piscine à Primošten représentent un investissement de choix pour ceux qui recherchent un mélange de design contemporain, de confort et de vues imprenables sur la mer. Si vous êtes intéressé par des propriétés similaires dans cette zone recherchée, explorez les annonces actuelles en cliquant sur meilleures propriétés à vendre à Primošten, où vous trouverez des maisons, des appartements et des villas de luxe pour le style de vie parfait sur l'Adriatique.
Toutes les propriétés disponibles et les offres premium dans la région : Primošten
/central/prod/contact/37/01KFFPCGH78HYVDM5K33B56TDY/famalo.png)
Dans l’immobilier haut de gamme, le défi n’est pas de trouver des biens. Il s’agit de reconnaître ceux qui méritent réellement votre attention.
C’est précisément là que Famalo apporte une solution. Il s’agit d’une plateforme immobilière moderne qui rend les premières décisions plus claires, plus rapides et mieux orientées vers l’essentiel.
Pour les acheteurs, cela signifie une sélection plus pertinente, basée sur leurs préférences réelles. Moins de bruit inutile. Un point de départ plus clair pour la recherche et la prise de décision. Dans certains cas, les acheteurs peuvent également accéder à des biens off-market, non largement disponibles sur le marché ouvert.
Pour les partenaires, Famalo offre une meilleure visibilité auprès d’un public qui recherche activement, dispose des moyens financiers et est prêt à agir. Cela se traduit par des demandes plus qualifiées et une meilleure adéquation entre l’offre et l’intérêt réel.
Construit autour d’une intention d’achat réelle. Une sélection plus pertinente. Un meilleur départ.

Vendez à l’international avec Famalo
Atteignez des acheteurs internationaux sérieux. Travaillez avec des clients pré-qualifiés.
Guidé par les données et un marketing soigneusement ciblé
Soutenu par le Famalo Buyers Club
Je confirme avoir lu et accepté les Termes et conditions des acheteurs ainsi que la Politique de confidentialité.
/hr/prod/real-estate/1028/NDRPNFOBMVDGUOXE9CYJPVEGQGHX/villa-de-luxe-avec-piscine-a-vendre-a-primosten-en-croatie-1.webp)
/hr/prod/real-estate/1028/XCAHCWV2CROVFDG8IGE8KOHC9PBP/villa-de-luxe-avec-piscine-a-vendre-a-primosten-en-croatie-2.webp)
/hr/prod/real-estate/1028/YY2V9KUL4530KQF1E101MALBFUHJ/villa-de-luxe-avec-piscine-a-vendre-a-primosten-en-croatie-3.webp)
/hr/prod/real-estate/1028/9HKUGUJMZMT0XI5HQH4UACISAHPR/villa-de-luxe-avec-piscine-a-vendre-a-primosten-en-croatie-4.webp)