/hr/prod/real-estate/1028/AU4AUUDUZ1KSQADRZG5H3631U6GJ/luxusna-vila-s-bazenom-na-predaj-v-primostene-v-chorvatsku.webp)
Luxusná vila s bazénom na predaj v Primoštene v Chorvátsku
Prehľad pripravenosti nehnuteľnosti
Vila na predaj v Primošten Resorte
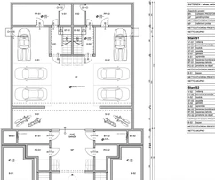
V pokojnom prostredí Primošten Resortu sa nachádza moderná dvojvilka s bazénom, s celkovou rozlohou 473,04 m². Táto exkluzívna nehnuteľnosť na predaj je rozdelená do troch podlaží a ponúka výnimočnú úroveň súkromia a pohodlia.
Dispozícia a vybavenie
Suterén zahŕňa priestrannú garáž pre tri autá a ďalšie miestnosti ako sklad, práčovňu a technickú miestnosť pre bazén. Vnútorné schodisko vedie na prízemie, kde sa nachádza veľká obývacia izba s jedálňou, moderná kuchyňa, spálňa a kúpeľňa. Z obývačky je priamy vstup na rozľahlú terasu pri bazéne so slnečnou terasou, ideálnou na oddych.
Na poschodí sú ďalšie tri spálne, každá s vlastnou kúpeľňou a východom na balkón s pôsobivým výhľadom na more. Vila je vybavená špičkovými materiálmi, modernými inteligentnými systémami a starostlivo vybranými detailmi, ktoré zabezpečujú maximálnu funkčnosť a estetiku.
Výhody lokality
Primošten Resort sa nachádza v blízkosti ocenených kamienkových pláží a centra Primoštenu, pričom zároveň poskytuje pokoj, súkromie a úchvatné výhľady na Jadran. Obklopený nedotknutou prírodou, olivovými hájmi a vinicami, rezort ponúka úplný pocit súkromia s výbornou dostupnosťou k mestským službám, prístavom a gurmánskej ponuke dalmatínskeho pobrežia.
Split je vzdialený 60 km, Šibenik 30 km a letisko Split 40 km. Kúpa tejto luxusnej vily na predaj v Primoštene predstavuje prestížnu voľbu a príležitosť investovať do jedného z najatraktívnejších projektov na Jadrane.
Luxusné vily s bazénom v Primoštene sú výnimočnou investíciou pre tých, ktorí hľadajú spojenie moderného štýlu, pohodlia a nádherného výhľadu na more. Ak vás zaujímajú podobné nehnuteľnosti v tejto atraktívnej lokalite, prezrite si aktuálnu ponuku kliknutím na najlepšie nehnuteľnosti na predaj v Primoštene, kde nájdete luxusné domy, byty a vily pre dokonalý život na Jadrane.
Všetky dostupné nehnuteľnosti a prémiové ponuky v regióne: Primošten
/central/prod/contact/37/01KFFPCGH78HYVDM5K33B56TDY/famalo.png)
V prémiových nehnuteľnostiach nie je hlavnou výzvou nájsť ponuky. Dôležité je vedieť rozpoznať tie, ktoré si naozaj zaslúžia vašu pozornosť.
Práve v tom je Famalo prínosom. Je to moderná realitná platforma, ktorá pomáha robiť prvé rozhodnutia pri výbere nehnuteľnosti jasnejšie, rýchlejšie a s lepším zameraním na to podstatné.
Pre kupujúcich to znamená výber, ktorý viac zodpovedá ich skutočným preferenciám, menej zbytočného šumu a lepší východiskový bod pri hľadaní aj rozhodovaní. V niektorých prípadoch môžu získať aj prístup k off-market ponukám, ktoré nie sú bežne dostupné na otvorenom trhu.
Pre partnerov Famalo prináša lepšiu viditeľnosť pred publikom, ktoré aktívne hľadá, má jasný záujem a je finančne schopné konať. Výsledkom sú kvalitnejšie kontakty a presnejšie prepojenie medzi ponukou a skutočným záujmom.
Postavené na reálnom záujme. Kvalitnejší výber. Lepší začiatok.

Predávajte globálne s Famalo
Oslovte serióznych medzinárodných kupujúcich. Pracujte s predkvalifikovanými klientmi.
Na základe dát a precízneho marketingu
S podporou Famalo Buyers Club
Potvrdzujem, že som si prečítal/a a súhlasím s Všeobecné obchodné podmienky pre kupujúcich a Zásady ochrany osobných údajov.
/hr/prod/real-estate/1028/NDRPNFOBMVDGUOXE9CYJPVEGQGHX/luxusna-vila-s-bazenom-na-predaj-v-primostene-v-chorvatsku-1.webp)
/hr/prod/real-estate/1028/XCAHCWV2CROVFDG8IGE8KOHC9PBP/luxusna-vila-s-bazenom-na-predaj-v-primostene-v-chorvatsku-2.webp)
/hr/prod/real-estate/1028/YY2V9KUL4530KQF1E101MALBFUHJ/luxusna-vila-s-bazenom-na-predaj-v-primostene-v-chorvatsku-3.webp)
/hr/prod/real-estate/1028/9HKUGUJMZMT0XI5HQH4UACISAHPR/luxusna-vila-s-bazenom-na-predaj-v-primostene-v-chorvatsku-4.webp)