/hr/prod/real-estate/6815/cover/isztria-svetvincenat-epulo-haz-medencevel.webp)
Isztria, Svetvinčenat – épülő ház medencével
Ingatlan felkészültségi állapota
Eladó egy modern, úszómedencés ház csendes környéken, Svetvinčenat közelében, 640 négyzetméteres telken. Az ingatlan ROH-BAU állapotban kerül értékesítésre, így a leendő tulajdonos saját igényei szerint fejezheti be a belső tereket és a végső munkálatokat, akár kényelmes családi otthonként, akár jövedelmező nyaraló befektetésként.
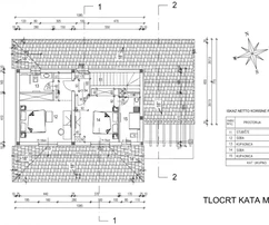
A ház két szinten helyezkedik el, tágas, funkcionális elrendezéssel. A földszinten fedett bejárat, előszoba, vendég WC, világos, egybenyitott nappali konyhával és étkezővel, tároló, hálószoba saját fürdőszobával, valamint műszaki helyiség található. A nagy fedett és nyitott teraszok a nappali terét a szabadba nyitják, ideális helyet biztosítva a pihenéshez és társasági összejövetelekhez. A földszint 136,92 négyzetmétert foglal magában. Az emeleten két tágas hálószoba található, mindegyik saját fürdőszobával, amelyeket belső lépcső köt össze.
Az ingatlan már teljes külső nyílászáróval rendelkezik, a víz- és villanycsatlakozások a telken elérhetők. A szennyvízrendszer csatlakoztatva van, minden dokumentáció rendben van, így a kivitelezés biztonságosan folytatható. A műszaki készültség és a személyre szabhatóság kombinációja rendkívül vonzóvá teszi a házat Közép-Isztriában.
Svetvinčenat egy történelmi város Isztria belsejében, híres reneszánsz örökségéről és a Morosini-Grimani várról. Olajfaligetek, természet és nyugodt tájak veszik körül, magánéletet, minőségi életet és erős, egész éves turisztikai potenciált kínál.
Az ingatlan megtekintése közvetítői szerződés aláírása után lehetséges, amely alapul szolgál a további adásvételi lépésekhez az ingatlanközvetítési törvénynek megfelelően. Vásárlás esetén a közvetítői díj 3% + ÁFA, amely az előszerződés vagy az adásvételi szerződés megkötésekor fizetendő.
Minden elérhető ingatlan és prémium ajánlat a(z) Svetvinčenat régióban
/central/prod/contact/37/01KFFPCGH78HYVDM5K33B56TDY/famalo.png)
A prémium ingatlanok piacán a kihívás nem az, hogy megtaláljuk a kínálatot. A lényeg az, hogy felismerjük, melyek érdemlik meg igazán a figyelmét.
Ebben nyújt megoldást a Famalo. Egy modern ingatlanplatform, amely segít abban, hogy az első döntések világosabbak, gyorsabbak és célzottabbak legyenek.
A vásárlók számára ez olyan kínálatot jelent, amely jobban illeszkedik a valós preferenciáikhoz. Kevesebb felesleges lehetőség. Egyértelműbb kiindulópont a kereséshez és a döntéshozatalhoz. Bizonyos esetekben a vásárlók off-market ajánlatokhoz is hozzáférhetnek, amelyek nem érhetők el széles körben a nyílt piacon.
A partnerek számára a Famalo nagyobb láthatóságot biztosít egy olyan közönség előtt, amely aktívan keres, pénzügyileg felkészült és készen áll a cselekvésre. Ez relevánsabb érdeklődéseket és jobb összhangot eredményez a kínálat és a valós kereslet között.
Valós vásárlói szándékra építve. Okosabb párosítás. Nagyobb relevancia már a kezdetektől.

Értékesítsen globálisan a Famalóval
Érjen el komoly nemzetközi vevőket. Dolgozzon előminősített ügyfelekkel.
Adatvezérelt döntések és gondosan felépítettmarketing
A Famalo Buyers Club támogatásával
Kijelentem, hogy elolvastam és elfogadom a vevőkre vonatkozó Általános Szerződési Feltételek és a Adatvédelmi tájékoztató rendelkezéseit.
/hr/prod/real-estate/6815/img_0/isztria-svetvincenat-epulo-haz-medencevel-1.webp)
/hr/prod/real-estate/6815/img_1/isztria-svetvincenat-epulo-haz-medencevel-2.webp)
/hr/prod/real-estate/6815/img_2/isztria-svetvincenat-epulo-haz-medencevel-3.webp)
/hr/prod/real-estate/6815/img_3/isztria-svetvincenat-epulo-haz-medencevel-4.webp)