/hr/prod/real-estate/7037/cover/karigador-isztria-uj-ikerhaz-tengerre-nezo-kilatassal.webp)
Karigador, Isztria: Új ikerház tengerre néző kilátással
Ingatlan felkészültségi állapota
A tengerparttól mindössze 350 méterre található ez a gyönyörűen megtervezett ikerház Karigadorban, amely ritka lehetőséget kínál egy új építésű ingatlan megvásárlására, amely ötvözi a kényelmet, a minőséget és a nyugodt, tengerre néző életstílust. Az átadás 2024-re várható, az ingatlan tökéletes elhelyezkedéssel bír Novigrad közelében, így egyszerre biztosít magánéletet és a strandokhoz, szolgáltatásokhoz való közelséget.
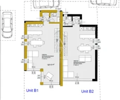
A ház három szinten terül el. A földszint 63,57 m²-es, nyitott konyhával, étkezővel, WC-vel (2,65 m²) és nappalival (51,22 m²), amely egy fedett, 9,70 m²-es teraszra és parkosított kertre nyílik. Az első emelet (61,79 m²) három hálószobát tartalmaz – 1. hálószoba (12,01 m²) saját fürdőszobával és 9,70 m²-es, tengerre néző erkéllyel – míg a 2. (9,89 m²) és 3. hálószoba (9,89 m²) egy modern fürdőszobán (2. fürdő: 4,61 m²) osztozik. Egy folyosó (10,89 m²) köti össze a helyiségeket, valamint található még egy fürdőszoba (1. fürdő: 4,80 m²).
A legfelső szint (51,06 m²) háztartási és pihenőzónaként szolgál, folyosóval (4,35 m²), gépészeti helyiséggel (0,77 m²) és egy nyitott tetőterasszal (45,94 m²), amely ideális a jövőbeli testreszabáshoz.
Az összes lakóterület 176,42 m², a kert 180 m². Az ingatlanhoz két privát parkolóhely, légkondicionálás és több terasz, köztük egy panorámás tetőterasz tartozik. Átgondolt elrendezése és elegáns kivitelezése ideális állandó otthonná vagy nyaralóvá teszi.
A ház rövid sétára található a piactól (400 m), élelmiszerbolttól (200 m), étteremtől (100 m), valamint mindössze 4,5 km-re Novigrad központjától, a kikötőtől, egészségügyi intézményektől és üzletektől. A Pula repülőtér 60 km-re, a Portorož repülőtér 30 km-en belül található. A híres Istralandia vízipark mindössze 7 km-re van az ingatlantól.
Karigador egy nyugodt tengerparti falu, amely természeti szépségéről és Isztria legjobb strandjaihoz való hozzáféréséről ismert. A környék békés légkört kínál, ugyanakkor kényelmesen közel van Novigrad pezsgő kulturális, gasztronómiai és szabadidős kínálatához.
Egység: B1
Minden elérhető ingatlan és prémium ajánlat a(z) Novigrad régióban
/central/prod/contact/37/01KFFPCGH78HYVDM5K33B56TDY/famalo.png)
A prémium ingatlanok piacán a kihívás nem az, hogy megtaláljuk a kínálatot. A lényeg az, hogy felismerjük, melyek érdemlik meg igazán a figyelmét.
Ebben nyújt megoldást a Famalo. Egy modern ingatlanplatform, amely segít abban, hogy az első döntések világosabbak, gyorsabbak és célzottabbak legyenek.
A vásárlók számára ez olyan kínálatot jelent, amely jobban illeszkedik a valós preferenciáikhoz. Kevesebb felesleges lehetőség. Egyértelműbb kiindulópont a kereséshez és a döntéshozatalhoz. Bizonyos esetekben a vásárlók off-market ajánlatokhoz is hozzáférhetnek, amelyek nem érhetők el széles körben a nyílt piacon.
A partnerek számára a Famalo nagyobb láthatóságot biztosít egy olyan közönség előtt, amely aktívan keres, pénzügyileg felkészült és készen áll a cselekvésre. Ez relevánsabb érdeklődéseket és jobb összhangot eredményez a kínálat és a valós kereslet között.
Valós vásárlói szándékra építve. Okosabb párosítás. Nagyobb relevancia már a kezdetektől.

Értékesítsen globálisan a Famalóval
Érjen el komoly nemzetközi vevőket. Dolgozzon előminősített ügyfelekkel.
Adatvezérelt döntések és gondosan felépítettmarketing
A Famalo Buyers Club támogatásával
Kijelentem, hogy elolvastam és elfogadom a vevőkre vonatkozó Általános Szerződési Feltételek és a Adatvédelmi tájékoztató rendelkezéseit.
/hr/prod/real-estate/7037/img_0/karigador-isztria-uj-ikerhaz-tengerre-nezo-kilatassal-1.webp)
/hr/prod/real-estate/7037/img_1/karigador-isztria-uj-ikerhaz-tengerre-nezo-kilatassal-2.webp)
/hr/prod/real-estate/7037/img_2/karigador-isztria-uj-ikerhaz-tengerre-nezo-kilatassal-3.webp)
/hr/prod/real-estate/7037/img_3/karigador-isztria-uj-ikerhaz-tengerre-nezo-kilatassal-4.webp)