/hr/prod/real-estate/7037/cover/karigador-istria-novy-dvojdom-s-vyhladom-na-more.webp)
Karigador, Istria: Nový dvojdom s výhľadom na more
Prehľad pripravenosti nehnuteľnosti
Len 350 metrov od pobrežia ponúka tento krásne navrhnutý dvojdom v Karigadore jedinečnú príležitosť vlastniť novostavbu, ktorá spája pohodlie, kvalitu a pokojný životný štýl s výhľadom na more. Dokončenie je plánované na rok 2024. Rezidencia je ideálne situovaná v blízkosti Novigradu, poskytuje súkromie aj blízkosť pláží a občianskej vybavenosti.
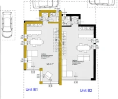
Dom má tri podlažia. Prízemie s rozlohou 63,57 m² zahŕňa otvorenú kuchyňu, jedáleň, toaletu (2,65 m²) a obývaciu izbu (51,22 m²) s výstupom na krytú terasu (9,70 m²) a upravenú záhradu. Prvé poschodie (61,79 m²) ponúka tri spálne – Spálňa 1 (12,01 m²) s vlastnou kúpeľňou a prístupom na balkón s výhľadom na more (9,70 m²) – zatiaľ čo Spálňa 2 (9,89 m²) a Spálňa 3 (9,89 m²) zdieľajú modernú kúpeľňu (Kúpeľňa 2: 4,61 m²). Chodba (10,89 m²) spája všetky miestnosti, spolu s Kúpeľňou 1 (4,80 m²).
Najvyššie poschodie (51,06 m²) slúži ako technická a relaxačná zóna s chodbou (4,35 m²), strojovňou (0,77 m²) a prístupom na otvorenú strešnú terasu (45,94 m²), ideálnu na budúce úpravy.
Celková obytná plocha je 176,42 m², záhrada má 180 m². Rezidencia zahŕňa dve súkromné parkovacie miesta, klimatizáciu a viacero terás vrátane panoramatickej strešnej terasy. Premyslené dispozičné riešenie a elegantné dokončenie robia z domu ideálny trvalý domov alebo rekreačné sídlo.
Dom je len pár minút chôdze od trhu (400 m), potravín (200 m), reštaurácie (100 m) a len 4,5 km od centra Novigradu, prístavu, zdravotníckych zariadení a obchodov. Letisko Pula je vzdialené 60 km, letisko Portorož do 30 km. Známy aquapark Istralandia je len 7 km od nehnuteľnosti.
Karigador je pokojná prímorská dedina známa svojou prírodnou krásou a prístupom k najlepším plážam Istrie. Oblasť ponúka pokojnú atmosféru a zároveň zostáva v pohodlnej blízkosti živého kultúrneho, kulinárskeho a rekreačného života Novigradu.
Jednotka: B1
Všetky dostupné nehnuteľnosti a prémiové ponuky v regióne: Novigrad
/central/prod/contact/37/01KFFPCGH78HYVDM5K33B56TDY/famalo.png)
V prémiových nehnuteľnostiach nie je hlavnou výzvou nájsť ponuky. Dôležité je vedieť rozpoznať tie, ktoré si naozaj zaslúžia vašu pozornosť.
Práve v tom je Famalo prínosom. Je to moderná realitná platforma, ktorá pomáha robiť prvé rozhodnutia pri výbere nehnuteľnosti jasnejšie, rýchlejšie a s lepším zameraním na to podstatné.
Pre kupujúcich to znamená výber, ktorý viac zodpovedá ich skutočným preferenciám, menej zbytočného šumu a lepší východiskový bod pri hľadaní aj rozhodovaní. V niektorých prípadoch môžu získať aj prístup k off-market ponukám, ktoré nie sú bežne dostupné na otvorenom trhu.
Pre partnerov Famalo prináša lepšiu viditeľnosť pred publikom, ktoré aktívne hľadá, má jasný záujem a je finančne schopné konať. Výsledkom sú kvalitnejšie kontakty a presnejšie prepojenie medzi ponukou a skutočným záujmom.
Postavené na reálnom záujme. Kvalitnejší výber. Lepší začiatok.

Predávajte globálne s Famalo
Oslovte serióznych medzinárodných kupujúcich. Pracujte s predkvalifikovanými klientmi.
Na základe dát a precízneho marketingu
S podporou Famalo Buyers Club
Potvrdzujem, že som si prečítal/a a súhlasím s Všeobecné obchodné podmienky pre kupujúcich a Zásady ochrany osobných údajov.
/hr/prod/real-estate/7037/img_0/karigador-istria-novy-dvojdom-s-vyhladom-na-more-1.webp)
/hr/prod/real-estate/7037/img_1/karigador-istria-novy-dvojdom-s-vyhladom-na-more-2.webp)
/hr/prod/real-estate/7037/img_2/karigador-istria-novy-dvojdom-s-vyhladom-na-more-3.webp)
/hr/prod/real-estate/7037/img_3/karigador-istria-novy-dvojdom-s-vyhladom-na-more-4.webp)